8SMIČKA

8SMIČKA
Adresa: Kamarytova 97, Humpolec, Česká republika
Investor:Nadační fond 8smička
Projekt:2015
Realizace:11/2016 – 03/2018
Užitná plocha:3000 m2
Zastavěná plocha:1073 m2
Obestavěný prostor:7600 m3


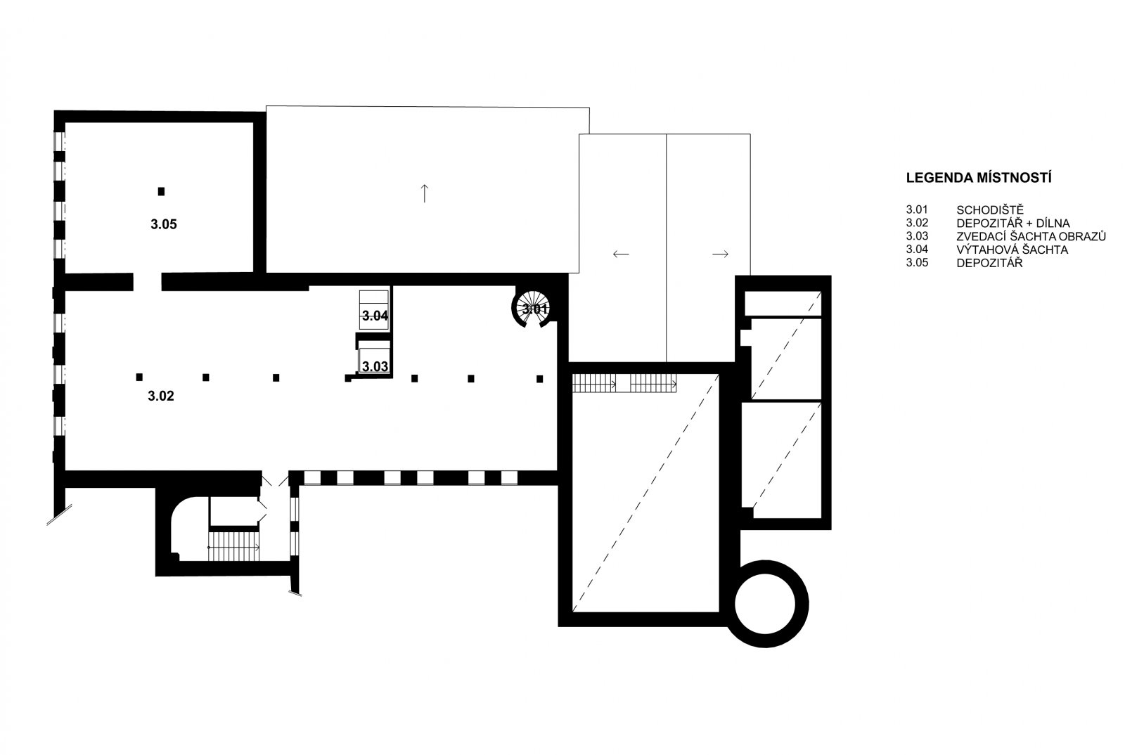
Bývalá továrna na vlněné látky Karla Trnky, následně hala č. 8 Národního podniku Sukno, prošla low-cost rekonstrukcí již v roce 2010. Hlavním poznávacím znamením se tehdy stala antracitová fasáda. Zásadnější proměnou objekt prošel v letech 2016-2018, kdy byl celkově přestavěn na galerii - zónu pro umění 8smička. Třípodlažní objekt je funkčně rozdělen tak, že v 1np se nachází hlavní výstavní prostor se zaměřením na české moderní a současné umění, kavárna, knihkupectví a multifunkční přednášková místnost. 2np zahrnuje výstavní prostory moderního a současného umění a soukromou část. Ve 3np se nachází depozitář vybavený regálovým systémem. Celková užitná plocha objektu je 3 000 m².

Technologie
Komfort vnitřního prostředí zajišťují technologie na vysoké úrovni, pro běžného návštěvníka skryté a lehce přehlédnutelné.
Prostory přízemí a patra měly od začátku omezenou světlou výšku pro účely výstav. Systémem snížených sádrokartonových lemů na výšku 2,6 m kolem obvodu každé výstavní místnosti bylo dosaženo vyváženého kompromisu, aby hlavní plocha zůstala ve světlé výšce cca 3,0 m. Snížené lemy jsou využity pro vedení vzduchotechniky a ostatních médií jako je elektro, slaboproud, topení, vodovod a kanalizace. Na hraně lemu je umístěn zapuštěný osvětlovací systém.

Akustika: Pro optimální akustické parametry výstavních prostor je zvolen perforovaný akustický sádrokartonový podhled, který splňuje vyváženou dobu dozvuku mluveného slova.

Osvětlení: Světlo pro výstavní prostory 8smičky je jeden ze zásadních parametrů kvality vnitřního prostředí. Přirozené světlo je v principu hůře regulovatelné a může ve své podstatě i znehodnocovat umělecká díla a urychlovat jejich stárnutí. Proto byl zvolen sofistikovaný systém galerijního umělého nasvětlení Hoffmeister. Tato technologie umožňuje nasvětlit exponáty cíleně jen v požadované míře intenzity a využít i dalších světelných efektů rozptýleného světla a bodového nasvětlení. Lištový systém je variabilní řešení pro umisťování světel po obvodu (i v prostoru) velkých místností. Každá výstava vyžaduje originální světelnou scénu, kterou umožní jednoduché přeskládání světel na liště do jiných pozic. Parametry světel jsou nastavitelné digitálním řídícím systémem DALI na dálku aplikacemi PC a mobilních technologií.

Stínění: jedním z požadavků bylo ponechání otvorů oken a navrácení objektu původní tváře fabriky. Byla proto použita speciální okna s kovovou mříží továrního charakteru s izolačním dvojsklem. V oknech v 1np a 2np jsou umístěny rolety s 1% propustností světla, které zajišťují nezbytné zastínění pro výstavní exponáty. V depozitu 3np jsou trvale spuštěné blackoutové rolety pro optimální prostředí pro dlouhodobé uložení sbírkových předmětů.

Vzduchotechnika: dalšími zásadními parametry pro kvalitu vnitřního prostředí jsou teplota, vlhkost a výměna vzduchu. Pro výstavní prostory je nezbytné, aby v objektu byla trvalá hodnota teploty 18-20°C a vlhkost vzduchu 50-55%. To vyžaduje speciální technologii distribuce tepla po objektu. Srdcem technologie budovy je strojovna vzduchotechniky a kotelna umístěná v přízemí severní strany domu. Zdrojem vytápění celého objektu jsou dvě tepelná čerpadla vzduch-voda. Velká vzduchotechnická jednotka potrubím rozvádí čerstvý vzduch po celé budově. V každé velké výstavní místnosti je následně jednotka přesné klimatizace umístěná skrytě v nikách nosných stěn, která reguluje průtok vzduchu, jeho teplotu a vlhkost a je napojena na elektro, topnou a chladicí vodu, pitnou vodu pro vlhčení a odvod kondenzátu a vyrovnává tak tepelné zisky a ztráty místností. U oken fasád jsou osazeny radiátory pro odstranění rizika kondenzace vodních par na plochách zasklení. Celý systém vytápění je řízen jednotkou MaR, která vyhodnocuje celkový stav budovy. Systém MaR a řídící systém DALI funguje na společné softwarové platformě a je snadno regulovatelný a uživatelsky přístupný.

Materiály, interiérové vybavení
Podlahy přízemních výstavních prostor a knihkupectví a auditoria sjednotila bílá epoxidová stěrka. Pro první patro včetně kavárny jsou použity dubové podlahy, které objektu dodávají domácí atmosféru. 
Pro vybavení interiérů byla zvolena kombinace domácích dodavatelů-nábytek do kavárny pochází ze sortimentu firmy TON, vybavení kanceláří a drobné doplňky od architektonického dua Schwestern a společnosti Profil nábytek. Společenskou místnost a kavárnu zdobí 8 ks repasovaných křesel Jindřicha Halabaly. Bar Cafe 8smička je tvořen na míru vyrobenou kompozicí rámů obrazů.  Originální autorská stavebnice Špulka z měkčeného polyuretanu a korku byla připravena na míru Ateliérem SAD. 

Vizuál
Vizuální identita 8smičky od grafiků Štěpána Malovce a Martina Odehnala se skládá z jednoduché typografie doplněné o vizuální proměny tvaru čísla 8. Na objektu samotném při příjezdu ve směru z D1 je umístěn světelný panel ve tvaru čísla 8, jehož motiv se bude postupem časem proměňovat, tento motiv je provázaný na web i na plášt kustodů.
0 komentářů
přidat komentář

Více staveb od OK PLAN ARCHITECTS