Bee House

ateliéry pro práci a bydlení

Bee House
Autor: Petr Novák
Adresa: Průmyslová 509, Ždírec nad Doubravou, Česká republika
Realizace:2024-25


Projektant: Petr Myslivec, TAPA projekt s.r.o.
Autor zahrady: Jan Kocourek, Rosteto s.r.o.
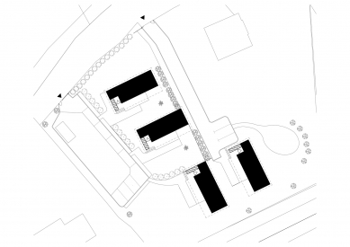
Projekt Bee House představuje soubor čtyř kompaktních ateliérů navržených jako flexibilní prostor pro práci, bydlení a tvorbu. Stavby jsou situovány na místě původní skládky a založeny na zemních vrutech, což umožnilo minimalizovat zásahy do terénu a zachovat charakter místa.
Konstrukční řešení je založeno na kombinaci oceli a dřeva. Střešní konstrukci tvoří ocelové H-nosníky a bednicí desky určené pro monolitické stavby, které zajišťují vysokou tuhost, dlouhou životnost a výrazný konstrukční výraz. Přesahy střech vytvářejí kryté pobytové terasy a chrání fasádu.
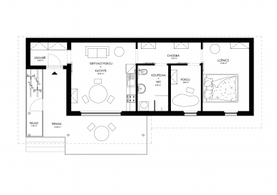
Fasáda je provedena z vertikálního obkladu z opalovaného dubového dřeva v technice shou sugi ban. Organické terasy navazující na interiér jsou rovněž z masivního dubu. Okenní a dveřní výplně jsou systému Schüco. Vytápění objektů je řešeno elektrickým podlahovým topením.
Zpevněné plochy a parkování jsou navrženy v kombinaci česaného betonu a dlažebních kostek z božanovského pískovce. Plochy bezprostředně před ateliéry jsou řešeny z materiálu Pardecor. Zahrada pracuje s kombinací trvalkových výsadeb, bambusu a zachované původní zeleně, která přirozeně odděluje jednotlivé objekty i parkovací plochy.
Interiér je koncipován jako materiálově střídmý, s důrazem na detail a řemeslné zpracování. Vnitřní obklady jsou z dubových lamel používaných i při výrobě masivních podlah. Kuchyně a vestavný nábytek jsou doplněny autorskými úchytkami a madly z kovu, odlévanými v organických tvarech. Autorské židle byly navrženy přímo pro tento projekt. Úložné a technické prostory jsou řešeny jako ocelové kóje s komaxitovou povrchovou úpravou a perforací s motivem listů, který se objevuje napříč celým konceptem stavby.
Venkovní i vnitřní osvětlení je integrováno jako součást architektonického řešení a pracuje s atmosférou místa zejména v podvečerních a nočních hodinách.
Projekt vznikl v přímém propojení návrhu, projekce a realizace s důrazem na konstrukční čitelnost, práci s přírodními materiály a detail.
Petr Novák
0 komentářů
přidat komentář