Blueriot

Kanceláře Deveron

Blueriot
Adresa: K Hájům 1233/2, Stodůlky, Praha, Česká republika
Investor:Deveron a.s.
Projekt:2023
Realizace:2024
Užitná plocha:340 m2
Obestavěný prostor:2000 m3
Náklady:18 000 000 CZK


Spolupracovníci a dodavatelé:
Podhledy: Barrisol
Skleněné příčky: Verti
Nábytek a akustické stěny: Cre8
Alucobondové obklady: Feal
Vestavěný nábytek: Fs Interier
Svítidla: Teto Lightning
Nástěnné malby: Ganbold Dalajn
Elektro koncové prvky: Monobrand

Ocenění: Kanceláře roku 2024, kategorie Malá kancelář
GPA Národní cena za architekturu 2025 - Finalista TOP 50
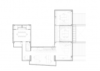
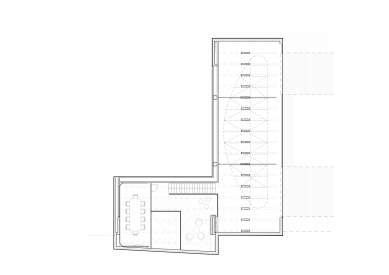
Projekt Blueriot představuje kompletní rekonstrukci kanceláří společnosti Deveron a.s. v postmoderní budově z 90. let. Zadáním bylo vytvořit prostor, který propojí funkční pracovní zázemí s atmosférou a výrazným konceptem. Inspiraci jsme čerpali z osobních vášní investora – letectví a potápění – a přetavili je do interiéru, který balancuje mezi hlubinami oceánu a otevřeným nebem. Světlo, materiály a scénografie podporují energii prostoru a inspirují k práci.
Původní interiér, zahlcený sádrokartonovými příčkami a kazetovými podhledy, trpěl nedostatkem denního světla a vzdušnosti. Rekonstrukce odhalila původní tektoniku stavby – monumentální monolitickou klenbu a dosud skryté objemy, které dnes definují charakter prostoru.
Scénografické řešení je v harmonii s dominantní klenbou, připomínající obrácený trup lodi. Pod ní se vznáší světelný a akustický objekt – „velrybí křídlo“ – inspirovaný kostrou plejtváka a lehkostí Blériotova letadla. Oceán a nebe, hloubka a vzlet, se zde spojují v harmonickém spojení přírody, techniky a lidské kreativity. Objekt vnáší pohyb, dynamiku a měkké denní světlo, zatímco prosklená východní fasáda interiér maximálně prosvětluje a propojuje s výhledy na panorama města.
Materiály a barevnost reflektují estetiku letectví a hlubin oceánu: hliníkové a nerezové detaily, korálově červená, evokující legendární „Rudého barona“, ikonického stíhacího pilota, a inkoustově temná modř kontrastují s měkkými, světelnými barrisolovými podhledy a surovým betonem s barevnými lazurami. Reflexní povrchy a scénografické nasvícení prostor opticky zvětšují. Původní pilíře, porostlé popínavými rostlinami, vnášejí do prostoru prvky zeleně a dotvářejí tak harmonické propojení techniky a přírody.
Výzvou projektu bylo dosáhnout optimální akustické a světelné pohody. Hlavní světelný prvek – „velrybí křídlo“ – měří 16 metrů, je z hliníku a komponentů 3D tisku, potažený barrisolovou fólií s mikroperforovanou spodní stranou pro lepší akustiku a rovnoměrný rozptyl světla. Objekt zároveň optimalizuje proudění vzduchu. Open space a jednací místnosti využívají systém Barrisol Clim – napínanou dvojitou fólii s integrovaným chlazením a ventilací, která zajišťuje rovnoměrný tepelný komfort a zachovává čistý architektonický výraz.
Projekt Blueriot tak propojuje estetiku oceánu a nebe s hi‑tech architekturou, inovativními technologiemi a inspirativní atmosférou, která podporuje kreativitu a každodenní práci.
CISARSTUDIO
0 komentářů
přidat komentář

Více staveb od CISARSTUDIO