Dům s kočičí promenádou

Dům s kočičí promenádou
Adresa: Mokrška ulica 49, Lublaň, Slovinsko
Projekt:2018
Realizace:2021-23
Užitná plocha:195 m2
Plocha pozemku:331 m2


Spolupráce: José Navarrete Jiménez, Mateja Obid, Mia Bećirević, Lise Chemin, Tereza Mirska
Fotografie: Tomaž Gregorič
Přestože až 80 % rozlohy Slovinska pokrývají lesy, tak v minulém století byla většina rodinných domů postavena z betonu a cihel. Tyto materiály jsou považovány za trvanlivé, bezpečné proti zemětřesení a úsporné. Domy ze dřeva zažívají renesanci až v posledních dvou desetiletích, a to především díky zvyšování povědomí o udržitelné výstavbě a pohodlném bydlení v dřevěných domech.
Obyvatelé domu. Čtyři členové rodiny ...prošli si dlouholetým bojem s těžkými alergiemi dětí. V průběhu let se zbavili prakticky všeho, co není přírodní. Další výzvou, před kterou se postavili, bylo postavit dům, ve kterém nebudou žádné umělé ani chemicky ošetřené materiály.

- kočka ...nikdy nechodí do zahrady
- papoušek ...potřebuje výhled do zeleně
- pes ...neměl by opouštět zahradu

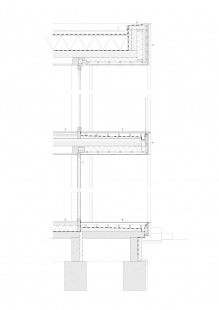
Jasně daný stavební program a vzrostlý 50 let stará magnolie určily výslednou podobu návrhu. Balkon pro kočku, velké okno orientované ke stromu pro papouška, oplocená zahrada, obslužná část s parkováním a zahradní úložný prostor. Dům je kompletně ze dřeva, kde bylo použita lepidly a ochranné nátěry na zcela přírodní bázi, izolace je z konopí, omítky jsou hliněné a konstrukce nemá žádné kovové podpěry.
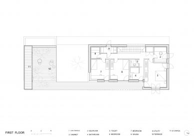
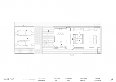
Hlavní přístup k domu je přes stávající komunikaci na západní straně pozemku. Objekt je konstrukčně rozdělen na dvě části - obytnou a servisní. Obslužná část zahrnuje přístřešek pro parkování dvou automobilů, kolárnu s úložným prostorem v přízemí a terasou v horním podlaží. Hlavní zahrada se nachází v přední jižní části. Celková délka objektu je 30 metrů. Uprostřed je vynechán prostor pro rozložitou korunu magnólie a vytváří tak před jídelnou další soukromou terasu.
Venkovní dvůr současně odděluje vstup od obytné části domu. V přízemí obytné zóny se nachází obývací prostor, kuchyň s jídelnou, toalety, úložný prostor a v horním patře jsou pak tři ložnice s hygienickým zázemím. Obytná část je s horní terasou nad automobilovým přístřeškem propojena pomocí lávky, což byl zvláštní požadavek klienta, aby se kočky mohly volně pohybovat, aniž by musely opustit dům… dům s kočičí promenádou (cat walk).
OFIS arhitketi
1 komentář
přidat komentář
Předmět
Autor
Datum
dům s kočičí promenádou
Jiří Skalský
27.11.25 09:47
zobrazit všechny komentáře

Více staveb od OFIS arhitekti