Dům v Badenu u Vídně

Haus in Baden

Dům v Badenu u Vídně
Spoluautor: Joni Kaçani
Spolupráce:Joni Kaçani
Adresa: Wüstegasse 56, Pfaffstätten, Rakousko
Projekt:9.2017 - 6.2019
Realizace:1.2020 - 6.2024
Užitná plocha:150 m2
Zastavěná plocha:100 m2
Plocha pozemku:1000 m2
Obestavěný prostor:869 m3
Náklady:500 000 Euro


Konstrukční řešení: Andrzej Glogowski
Fotografie: Willem Pab
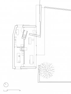
Hned vedle železniční dráhy a za bývalou vilou majitele továrny se nachází rodinný dům, který je na introvertním, ale současně vysoce exponovaném pozemku mezi rušnou železniční tratí a klidnou zahradou. Příjezdová cesta vede podél mírně zaoblené železniční tratě lemované starými stromy. Klidová část domu se otevírá směrem k pozemku, který kdysi býval rozlehlou zahradou přiléhající k továrníkově vile. Nově navržený objekt svým uzavřeným průčelím dává jasně najevo, že zde příjezdová cesta končí. Ze severní strany dům těsně přiléhá ke kolejím. Na opačné straně zahradu obíhá zídka, která jasně definuje soukromý prostor důsledně chráněný před okolním světem. Tato uzavřená zahrada tvoří protipól vůči dopravní infrastruktuře na protější straně domu. Vstup do této zahrady je možný pouze přes dům.
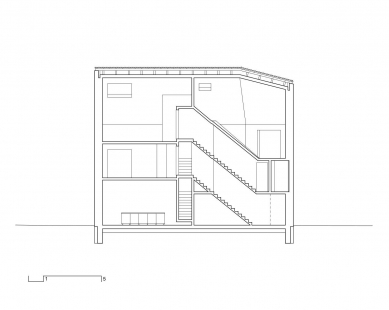
Obvodové stěny tvoří 55 cm silný izolační beton. Archaicky působící objekt zůstává difuzně otevřený a stěny nemají žádné další vrstvy. Stejný betonový povrch je uvnitř i vně domu. Všechny vnitřní stěny a stropy jsou z 15 cm tenkého železobetonu. Potrubní rozvody pro vytápění v zimě a chlazení v létě jsou uloženy přímo do podlahových desek. Vstup do domu se nachází ve výklenku mezi průčelím a obvodovou zídkou. Polovina domu se otevírá přes celou výšku. Místnost s impozantními rozměry: 10 metrů na výšku, téměř 12 metrů na délku a něco málo přes 3 metry na šířku se obrací do zahrady, která je obytnou součástí domu.
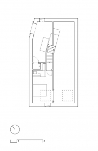
Do otevřené poloviny se propisuje hmota schodiště. Jedno schodišťové rameno je umístěno centrálně a druhé vede po obvodu. Schodiště jsou mírně zakroucená podobně jako dvojitá šroubovice a především zpřístupňují druhou polovinu domu, v níž se ve třech patrech nachází šest místností orientovaných směrem k železnici. Místnosti mají přibližně stejnou podlahovou plochu a jedno velké pevně zasklené okno obrácené severním směrem ke kolejím. Vertikální klapky pro větrání jsou umístěny co nejdál od zdroje hluku. Různé délky schodišťových ramen vytvářejí různé světlé výšky místností pro tyto jinak identické místnosti.
Každé ze schodišť vede do samostatných a nepropojených částí. Ze vstupní haly vede schodiště do dvou místností, které jsou odsazeny o půl patra. Ze středu obytného prostoru vede schodiště přes jeden pokoj do ložnice v nejvyšší části domu. Ačkoli všechny tyto místnosti leží nad sebou nebo vedle sebe, tak jsou vnímány jako co nejdále od sebe. Díky proplétání schodišť se obě části obrací do všech čtyř stran a rozprostírají se přes všechna čtyři podlaží.
I přes svoji vnitřní rozdrobenost je dům zvenku vnímán vždy jako celek. Specifické prostorové vlastnosti vytvářejí nepředvídatelné a rozmanité možnosti a reagují tak na aktuální životní potřeby.
Balissat Kaçani
0 komentářů
přidat komentář