MIS – Muzeum obrazu a zvuku v Ceará

Museu da Imagem e do Som Chico Albuquerque

MIS – Muzeum obrazu a zvuku v Ceará
Adresa: Av. Barão de Studart 410, Meireles, Fortaleza, Brazílie
Realizace:2022


Spolupráce: Alexandre Branco, Ana Carolina Moura, Gonçalo Fernandes, Hélder Ferreira, João Lago, Joel Moniz, Margarida Araújo, Pedro Mendes, Tiago Almeida, Tomé Capa
Fotografie: Felipe Petrovsky
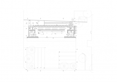
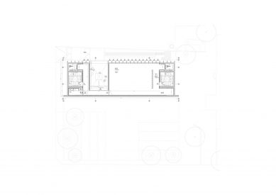
Nová budova MIS (Museu da Imagem e do Som, Obrazového a zvukového muzea) se nachází v blízkosti souboru vládních budov Palácio da Abolição (Sérgio Bernardes, 1970). K historickým objektům chová respekt, navazuje s nimi vztah a to nejen svým měřítkem, ale také podobným architektonickým jazykem. Stejně tak se snaží začlenit do stávající městského prostředí.
Umístění na okraji vyčleněného pozemku umožnilo uvolnit venkovní plochy, aby vzniklo čtvercové náměstí. Velkolepé nástupní prostranství slouží jako prodloužený koberec, na který navazuje vstup do muzea. Samotná budova muzea tvoří nepřehlédnutelný vertikální prvek se souvislou plochu fungující jako „jeviště“ i „projekční plocha“.
Horizontální a vertikální části projektu mezi sebou odděluji krytý venkovní prostor, což umožnilo vytvořit scenérii podobnou amfiteátru a zároveň jasně rozpoznatelný vzhled budovy nového muzea.
José Manuel Carvalho Araújo
0 komentářů
přidat komentář

Více staveb od Carvalho Araújo