Tacktoren

Rekonstrukce průmyslového objektu na umělecké centrum

Tacktoren
Adresa: Kapucijnenstraat 10, Kortrijk, Belgie
Realizace:1994-98
Užitná plocha:1900 m2
Náklady:1 500 000 Euro


Belgické město Kortrijk leží v těsném sousedství francouzských hranic. Ekonomicky vyspělejší vlámská část země je rovněž vyhlášena pro svoji staletou tradici pivovarnictví. Na severním okraji historického centra Kortrijku se nachází ostrov obtékaný řekou Lys, kde se až do minulého století nacházel pivovar, který v roce 1760 založil Pieter Frans Ingatius Tack (později byla společnost rozdělena na dva pivovary: Cie v ulici Handboogstraat  pivovar Tack ve dnešní ulici Kapucijnenbeluik). Pivovaru se dařilo a byl stále rozšiřován. Po druhé světové válce přišel s úspěšným ležákem Orta, ale v roce 1962 musel být pivovar uzavřen a o tři roky později následovala demolice části areálu. V roce 1976 odkoupilo část budov město a rozhodlo se ji využít ke kulturním účelům.
Pivovarská věž Tacktoren pochází z roku 1948 podle návrhu ateliéru Gernay. Věž, která původně sloužila k tzv. hvozdění a odkud se do okolí linula vůně sladu, neumožňovala mnoho dalšího využití. Před zbouráním ji uchránili umělci vyhledávající netradiční místa. Objekt, který by byl jinak pro potřeby bydlení nebo běžný život nemyslitelný, umělcům skýtá inspirativní prostředí pracoven, ateliérů a sálů. V současnosti areál Tacktoren (dnes Budatoren) slouží komunitě 40 sdružení a 150 umělcům.
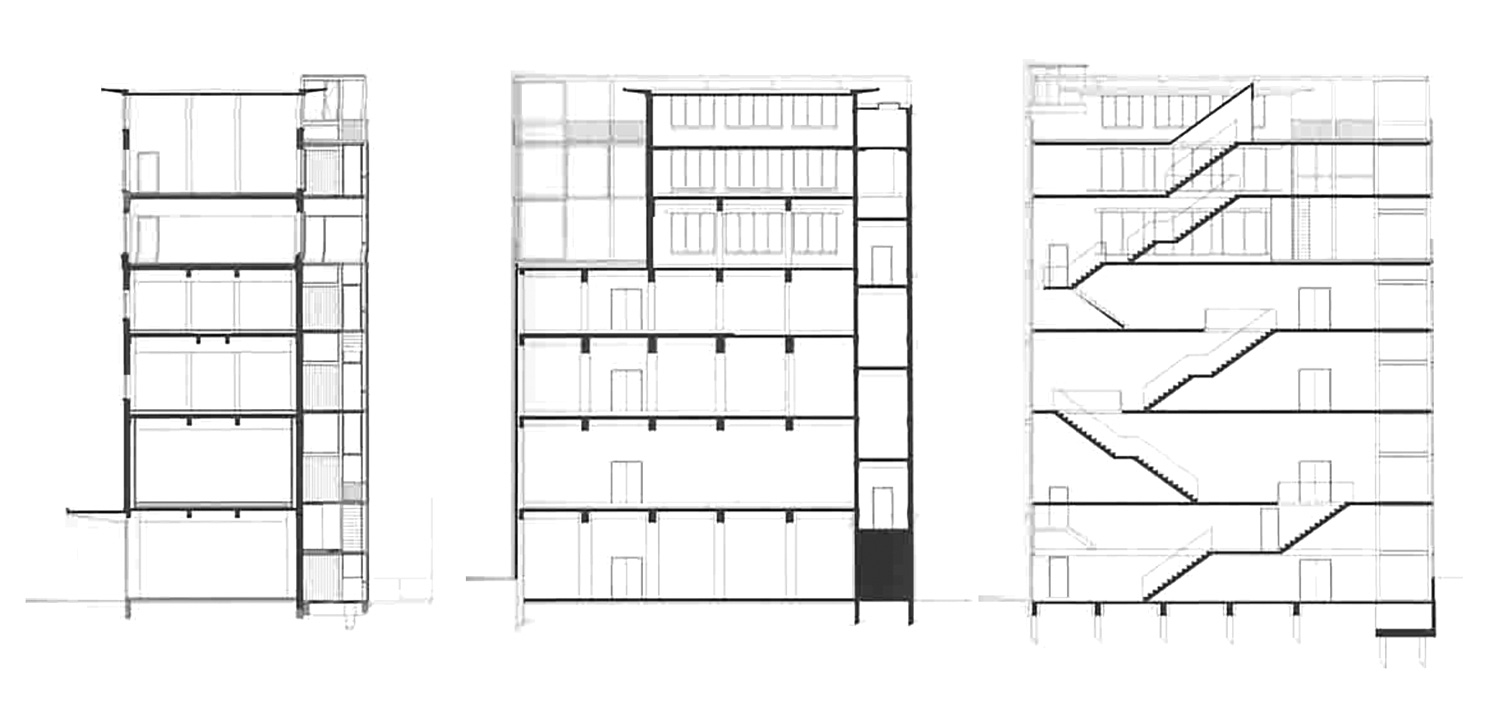
Na počátku byl projekt Stéphane Beela, který společně s Lieven Achtergael, navrhl zachovat původní věž a vlastní zásahy oba autoři minimalizovali na předsazenou prosklenou stěnu obsahující veškeré potřebné komunikace. Historická struktura tak mohla být pouze očištěna na železobetonový skelet a výplňové režné zdivo. Třímetrový pás schodišť, výtahů a záchodů vyřešil rušný provoz uměleckého centra. Stal se foyer, místem k setkávání a nabídl netušené výhledy na historické centrum Kortrijku. Nový subtilní zásah je v kontrastu s hmotnou pivovarskou věží. Při pohledu z dálky lze novou přístavbu prohlédnout skrz a vnímat jen původní objekt.
Autoři použili ocelovou konstrukci známou z průmyslových staveb. Detaily jsou prosté a funkční bez uměleckých aspirací. Jednoduchost nové přístavby souzní s minimálními zásahy do starého objektu. Čím méně je pozornosti odpoutávajících detailů na budově, tím více se mohou umělci soustředit na svou vlastní tvorbu a návštěvníci na předváděné umění (v případě Tacktoren jde hlavně o divadelní a taneční představeni).
1 komentář
přidat komentář
Předmět
Autor
Datum
super
granko
08.08.13 09:13
zobrazit všechny komentáře

Více staveb od Lieven Achtergael, Stéphane Beel