Terasový dvojdům Krč

Terasový dvojdům Krč
Spoluautor: Tomáš Minarovič
Adresa: Nad Obcí I, Krč, Praha, Česká republika
Projekt:2016-23
Realizace:2024
Užitná plocha:958 m2
Zastavěná plocha:489 m2
Plocha pozemku:1356 m2


Spolupráce
Statika: František Denk, Martin Čožík, Jiří Ilčík
Zdravotechnika, vytápění: Tomáš Balažovič
Větrání: Miloš Pozdník
Elektrotechnika: Jaroslav Šebek
Požární bezpečnost: Jindřiška Hüttnerová
Zahradní úpravy: Tomáš Sklenář
Prudké svahy pražské Krče se zvedají od Kunratického potoka směrem k severu nad dnešní Jižní spojkou. Ještě před sto lety byly územím vinic patřících k drobné vísce Dolní Krč a k ojedinělým zemědělským usedlostem. V první polovině 20. století byly vinice rozparcelovány pro výstavbu rodinných domů a vil se zahradami, postupem času ale vznikla v komplikovaném terénu zástavba velmi rozmanitá. Typické pro území byly dvojice parcel ve svahu pod sebou, horní přístupná ze severu, spodní z jihu. Druhá půlka 20. století do území vnesla výstavbu bytových domů celé řady typů a parcela, na níž jsme měli za úkol navrhnout nový dům, byla od svého jižního přístupu odříznuta. Vznikla tak atypická situace – hluboká parcela s převýšením přes 10 metrů, přístupná pouze z jedné strany. Novostavba nahradila starší, mnohokrát přestavěný rodinný dům v horní části parcely, který po úpravách nivelety ulice ztratil úrovňový přístup – chodník se ocitl o více než 1,5 metru níže a vjezd tím zanikl. Součástí realizace proto byla i nová úprava chodníků, aby výškově navazovaly na vozovku i okolní zástavbu.

V území nalezneme celou řadu výrazně řešených domů – asi nezajímavější je dvojice brutalistních terasových bytových domů z přelomu 60. a 70. let reagujících na prudce stoupající terén, jež přes ulici sousedí s pozemkem naší stavby. Naopak k jižní straně pozemku přiléhá soubor bytových domů ze 70. a 80. let. 20. století. I tento architektonický kontext jsme se snažili návrhem reflektovat.

Hlavními pozitivy pozemku byla jeho velikost, velké množství zeleně, výhled na jih až na protější zalesněný svah a výhodná orientace. Vyvažovaly je ale také komplikace – problematický přístup a velké převýšení.

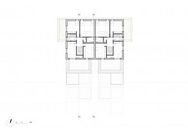
Výsledný dvojdům charakterizují terasy orientované na jih umožňující po svém obvodu výsadbu vyšší zeleně. Hmota je řešena jako ustupující bílý blok kopírující terén. Na bočních fasádách jsou dle výhledů z interiéru komponovány různé typy čtvercových oken. Na úrovni ulice je tento bílý monolit protnut horizontálním objemem garáží opláštěným přírodním hliníkovým falcovaným plechem. Do ulice je stavba jednopodlažní se šikmou střechou; reaguje tak na bezprostředně sousední rodinné domy a jimi danou stavební čáru i výšku. Dolů ze svahu, k jihu, se stavba postupně rozrůstá a odkazuje na terasové bytové domy, které se nachází nad ní. Dům tak má dvě tváře – do města a do zeleně. Naším cílem bylo navrhnout bydlení v zeleni, a to ve všech podlažích domu. Stíněné terasy s vestavěnými truhlíky a v podstatě nerušený pohled z obývacích pokojů na horizont či do zelené zahrady jsou tak jeho hlavním motivem. Stavba se svými jednoduchými materiály a střídmou barevností snaží zeleni příliš nekonkurovat.

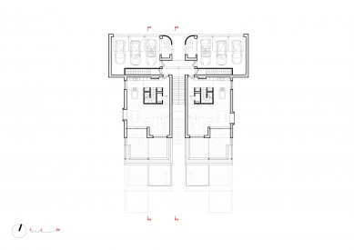
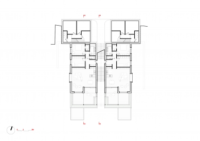
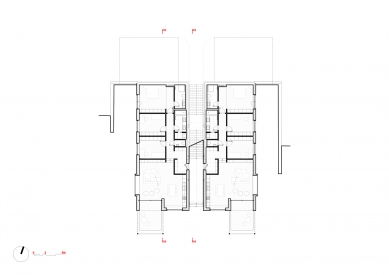
Vstupy do bytů jsou z vnějšího schodiště, které protíná dům v ose mezi oběma sekcemi, a je částečně překryto objemem podkroví. Tento výrazný řez hmotou stavby zároveň propojuje ulici a zahradu, která je o téměř 8 metrů níž. Řešení provozu se inspirovalo klasickými činžovními vilami: každý z dvojice zrcadlově řešených domů obsahuje tři větší bytové jednotky (4kk, 3kk a mezonetové 5kk) se samostatnými vstupy a společné zázemí se sklepy, garáže a kolárny. Zahrada s ohništěm a vzrostlou zelení (původní i nově vysazenou) je společná.

Do interiérů vnáší vestavný nábytek použitou barevností hravý kontrast k monochromatičnosti exteriéru. Dubové dýhy jsou doplněny o barevné lakované plochy. Terasy stíní pergoly se žlutými baldachýny. Obývací pokoje všech bytů mají kromě přístupu na terasy a výhledu do zeleně také sedací bezrámová okna s hlubokým parapetem, která se zároveň výrazně projevují na fasádách. V obytných místnostech byl přiznán železobeton monolitických stropních desek.

Stavba je řešena jako energeticky téměř nulová, s recyklací dešťové vody, využitím tepelných čerpadel a nuceného větrání.
0 komentářů
přidat komentář