Vila na kopci

Vila na kopci
Investor:manželé Kadlecovi
Projekt:2006
Realizace:2006-08


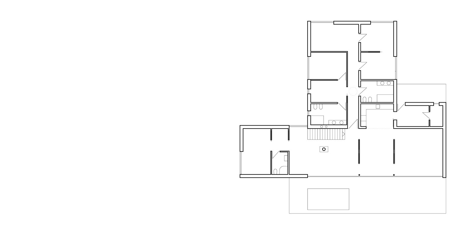
Dům je umístěn na kopci s výhledem do krajiny na všechny strany. Dvoupodlažní hmota ve tvaru písmene T má spodní podlaží zapuštěno do terénu. Výsledkem je potlačení hmoty domu v dálkových pohledech, takže působí jako přízemní. Horní podlaží je na konci odlehčeno vysunutím nad spodní.
Garáž je umístěna nezávisle na hmotě domu v nejnižším místě pozemku. Vstup do domu je v úrovni suterénu. V suterénu je technické zázemí, domácí kino a sauna. Vstupní hala je propojena schodištěm s halou v úrovni přízemí. Jižní přízemní křídlo domu tvoří propojený obytný prostor, napojený na venkovní terasu. Z obytného prostoru je přístupné ložnicové křídlo s pracovnou.
Nosnou konstrukci tvoří stěny z cihelných bloků Porotherm SI a keramické stropy. Výraz domu je založen na neutrální světle šedé omítce domu s jednoduchou kompozicí okenních otvorů a hliníkovými rámy oken.
4 komentáře
přidat komentář
Předmět
Autor
Datum
co ja viem
robert.zolak
25.09.08 09:25
dotaz
Werner
20.12.08 11:55
KRB
Luboš Píš
25.01.09 12:57
zobrazit všechny komentáře

Více staveb od ARCHTEAM