Výrobní budova Era

Výrobní budova Era
Spolupráce:Ondřej Punda, Barbora Skalová, Iva Jeřábková
Adresa: Průmyslová 462, Pardubičky, Pardubice, Česká republika
Investor:Era, a.s.
Projekt:2020
Realizace:2022-23


Ověřovací studie: Jiří Bíza, Tomáš Novotný, Ondřej Hilský, Pavel Táborský (2017)
Hlavní inženýr projektu: AED Project, a.s.
Ocenění: Finalista 10. ročníku České ceny za architekturu 2025
Rekonstrukce a přístavba výrobní budovy Era, a.s.
Společnost Era, a.s., je výrobcem systémů zajišťujících bezpečnost letového provozu, a to pro vojenské i civilní účely. Její výrobní a administrativní areál se nachází v tradiční průmyslové části Pardubic. Původní výrobní budova, postavená v 90. letech, byla nejstarší součástí areálu. Od své stavby plnila funkci výrobní a administrativní budovy. V areálu postupně vznikly další objekty. Nejprve dvě montážní haly, pak byla v roce 2017 v areálu dokončena nová administrativní budova (Jiří Bíza, Ondřej Hilský, Pavel Táborský).
Výrobní kapacity areálu přestávaly stačit a stav 30 let staré budovy se zhoršoval. O rekonstrukci a přístavbě haly se proto uvažovalo delší dobu. Bezprostředně po dokončení administrativní budovy v roce 2017 se její autoři zabývali možnostmi rozšíření výrobních prostor formou přístaveb a nástavbou stávajícího administrativního objektu. Tato cesta narážela na limity areálu a zároveň se ukázala jako velmi nákladná. V roce 2020 se investor rozhodl pro zhotovení projektu jednoduché přístavby a rekonstrukce stávající haly. Podmínkou rekonstrukce a přístavby bylo nepřerušení výroby během celého stavebního procesu. Nebylo tak možné celý proces zjednodušit odstraněním stávající budovy a stavbou na zelené louce.
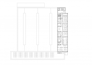
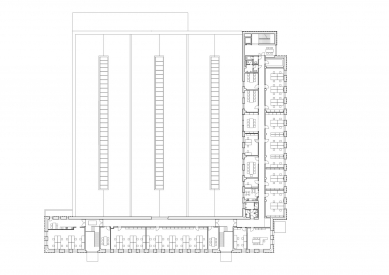
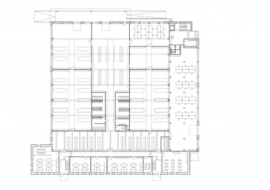
Jako první bylo na severní straně stávající budovy přistavěno třípodlažní kancelářské křídlo. Následně prošla postupnou rekonstrukcí trojlodní výrobní hala. Z důvodu nepřerušení, ale také postupného nárůstu objemu výroby byly jednotlivé kroky rekonstrukce pečlivě plánovány.
Celkovým výsledkem je nová, provozně fungující výrobní budova s jednotným výrazem.
Původní objekt byl konstrukčně řešen jako montovaný skelet, přístavba je skeletová, monolitická. Součástí stavby a výškovou dominantou je stožár sloužící pro testování technologií. Stavba dostala nový obvodový plášť. Členění pláště je inspirováno příhradovými konstrukci stožárů používaných pro instalaci technologií. Výrazem objektu se snažíme reflektovat jeho účel.
Celá stavba je opatřena novým obvodovým pláštěm, který oproti původnímu stavu výrazně zlepšuje tepelně technické vlastnosti budovy. Plášť je zvolen jako těžký obvodový. Princip zdi a menších oken je technologicky méně náročný než prosklená fasáda.
Pro potřeby snížení energetické spotřeby budovy jsou na střeše osazeny fotovoltaické panely.
0 komentářů
přidat komentář

Více staveb od Jiří Bíza, Tomáš Novotný
Bíza architekti s.r.o.