AEAJ Green Terrace

<AEAJ Green Terrace>

AEAJ Green Terrace
Architect: Kengo Kuma
Address: 6 Chome-34-24, Jingumae, Shibuya-ku, Tokyo, Japan
Investor:Aroma Environment Association of Japan
Completion:2023
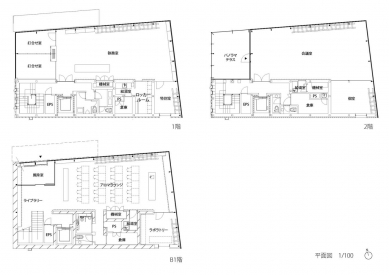
Area:491 m2


Collaboration: Minoru Yokoo, Yutaro Ota, Nanako Adachi, Yohei Mochizuki, Fumiya Kaneko, Yoo Shiho, Kyoko Mase

Cooperation: Ejiri Structural Engineers

Construction Team: Matsushita Industry
Photography: Masaki Hamada (kkpo)
New facility for Aroma Environment Association of Japan
An overall shape that looks like a tree was assembled using small section pieces (105mm×105mm) of Japanese cypress based on the theme of the aroma of wood and enclosing it inside a glass box. This glass box is filled with the aroma of wood, creating space where you can experience the fragrance throughout the facility.
The main structure consists of a steel frame, but the dimensions of the steel members were reduced so that they were close to the small sections of the wood members in an attempt to blend in with the unique, delicate feeling of particles.
The terrace, with a structure like a balancing toy, has an open panoramic view of the Jingumae woods. One of the focal points of the design process consisted of combining small wood particles to create a structure with an ambiguous profile similar to an arts and crafts project in contrast to the Yoyogi National Gymnasium designed by Kenzo Tange, which can be seen across the railway tracks.
Kengo Kuma & Associates
0 comments
add comment

more buildings from Kengo Kuma