Theater Poprad

Theater Poprad
Address: Scherfelova 1308/15, Poprad, Slovakia
Project:2022-2023
Completion:2023-2025
Area:2000 m2
Built Up Area:720 m2
Site Area:1564 m2
Built Up Space:11600 m3


Construction part: Ing. Mojmir Began
Static: Ing. Michal Hogh
Lighting design: Lightlab
Visual communication: Marcel Benčík
The addressed area and object are located in the Poprad-Veľká district on Scherfflerová Street, adjacent to the national cultural monument - the Church of St. John the Evangelist. The first written mention of Veľká dates back to 1268; in the 15th century, it was one of the largest and wealthiest towns in Spiš. In 1945, it was annexed to the city of Poprad. Veľká represents a typical Spiš town with a linear layout that developed along an ancient trade route leading through the Tatras. It was founded by German settlers, and its urban structure still bears traces of the original Gothic and Renaissance parceling with numerous preserved and reconstructed burgher houses.

The project addresses the reconstruction and conversion of the former Máj cinema into a new theater operation. The "Cooperative House," later the cinema "Máj," built in the 1980s, was based on the footprint of two original Gothic burgher houses that were combined into one during the Renaissance. The reconstruction preserved the original vaulted spaces in the basement and a significant part of the above-ground load-bearing structures. The original gable roof was replaced with a mansard roof on steel truss beams. The cinema operated until the first half of the 2010s; subsequently, the building was mostly unused and gradually deteriorated. A private investor — for whom we realized a literary café and a small theater hall in another city in 2018 — decided in 2022 to purchase the building from the city and establish the first-ever professional theater scene in Veľká. Our design recycles a building that has already been recycled several times, which we perceive as a contribution to the discussion about preserving and reusing existing building structures and the need to minimize the ecological impacts of excessive demolition.

The existing building significantly influenced the spatial relationships in the area with its scale and form. One of the basic strategies of the architectural solution was to reduce its volume to mitigate the impact on the street development and the adjacent church. By reshaping the roof landscape, reducing the volume of the roof floor, and contextually adjusting the roof plane towards the street, the object achieves a clear and memorable expression that respects its most important neighboring element. At the site of the original exterior staircase on the eastern side, we designed a new vertical communication core with a volume shaped by curves. The curves also articulate the main entrance to the building and the modeling of the roof landscape. The modeling of the architectural form works with a geometry that refers to the preserved Gothic arches. A new ramp was also designed on the eastern side, continuing to a balcony oriented towards the Velický Stream.

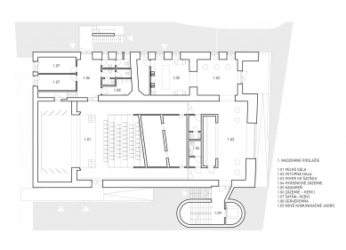
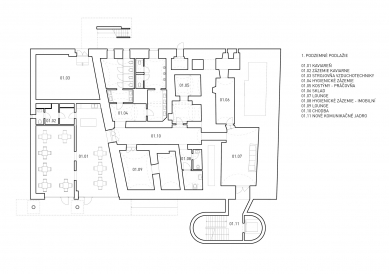
The architectural design respects the original spatial composition but simultaneously defines new operational links necessary for the full functioning of the theater. The dominant space is the main hall with fixed seating elevation. On the 3rd floor, there is a small hall situated in a roof extension, supplemented by backstage areas for performers oriented towards the stream. The basement includes facilities for visitors, technical spaces, and the Záhrada café with direct access to the "summer stage" on the eastern part of the plot. The architectural expression of the building is civil, yet the modeling of the mass reflects its public and cultural function.

The layout solution is based on a thorough analysis of the spatial capacities of the original building. It respects the historical composition, but through a series of interventions, it introduces new operational principles for a contemporary cultural building. The main entrance from the street is preserved but enhanced with a remodeled covered entrance space. Adjacent to the foyer is the ticket sales area and a small theater bar. In the foyer, there is a cloakroom in a separate box with restroom facilities for the disabled and for staff. The main hall on the 1st floor consists of an auditorium with fixed elevation and a stage separated by a portal. Backstage areas for performers are adjacent to the stage with the possibility of independent access from the exterior via the original staircase. The new communication core connects all floors, including the box on the 2nd floor and the small hall on the 3rd floor. The capacity of the main hall with the box is 180 seats.

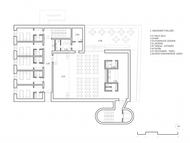
On the 2nd floor, there are administrative facilities and an apartment for guest artists. On the 3rd floor, there is a "small" hall with a capacity of 80 viewers, a foyer with a bar, and a terrace oriented towards the panorama of the Tatras. The hall is complemented by cloakrooms and accommodation units for performers. It also serves as a rehearsal space.

The new vertical structures are made of monolithic reinforced concrete and ceramic fired bricks. The new ceilings are reinforced concrete; above the small hall, there are closed steel beams with trapezoidal sheets. The building is insulated with a contact insulation system and finished with an elegant plaster. The roofs are flat single-layer, and rainwater is drained into a soakaway system hidden in the insulation. The windows are aluminum with insulated triple glazing. The interiors combine exposed concrete, smooth plasters, and polished concrete. Both halls are designed in contrasting materials: a wooden acoustic coating and black ceiling complement a "pattern" of brass elements that give the space nobility. The building is heated by a cascade of air/water heat pumps, and the main spaces are equipped with air conditioning and stage technology at a contemporary level. The interiors are furnished with modest, quality furniture.

The summer stage consists of tiered seating made from precast concrete elements. The western part of the plot and the parking lot are designed with grass paving elements.
zerozero
The English translation is powered by AI tool. Switch to Czech to view the original text source.
1 comment
add comment
Subject
Author
Date
Velmi zdařilá rekonstrukce
VV
11.12.25 10:08
show all comments

more buildings from zerozero