Home under the wings of Jested

Home under the wings of Jested
Address: Liberecký kraj, Czech Republic
Completion:2024
Area:95 m2


When I started working on this project, I knew I wanted to create an interior that was not only beautiful, but also had a deeper connection to the place where it is located. Mount Ještěd became not only an inspiration, but also a symbolic element that is reflected in the entire space.
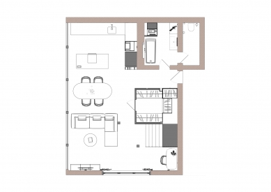
This duplex apartment is part of a modern log cabin in the Liberec region and its concept is based on the harmony between traditional materials and modern design. Upon entering the apartment, the illuminated silhouette of Jested, which is part of the central multifunctional wardrobe cube, catches the eye. This element not only practically divides the space, but also creates a visual landmark of the apartment.
The mirrored surface in the living area visually enlarges the space and reflects the surrounding landscape, thus enhancing the connection between the interior and the exterior.
I designed the kitchen to be functional, but at the same time aesthetically timeless. The combination of natural oak and Calacatta marble adds a refined touch to the space, while the kitchen island acts as a natural hub of activity - a place for food preparation and informal gatherings.
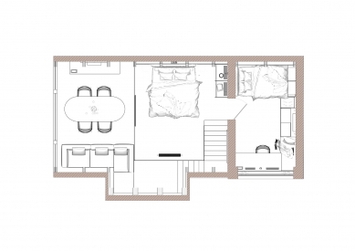
I designed the staircase leading to the attic bedroom to be both elegant and practical. I created a cozy work area and a library underneath, which was one of the moments when aesthetics had to be combined with maximum functionality. The bedroom itself is designed as an open space, which underlines the airiness of the whole apartment.
In the children's room I tried to combine functionality with playfulness. The bespoke furniture is based on traditional craftsmanship, but brings modern variation so that it can grow with the child.
When designing this interior, it was essential for me to create a space that is not only visually appealing, but above all comfortable and meaningful. The Loxone smart home, the tree-shaped wine cabinet and other innovative elements contribute to making life in this apartment not only practical but also inspiring.
The project "Home under the wings of Jested" is special to me not only because of its location but also because of the story it tells. It is a home where design meets landscape and where every detail contributes to an atmosphere of peace and harmony.
Tak Design
0 comments
add comment