House in Brandýs nad Labem

House in Brandýs nad Labem
Concept and Context
The new family house replaces the original, operationally and height-wise inadequate structure. The design is conceived as a spatial structure that maximally utilizes the potential of the plot with mature greenery. While the original house isolated the garden due to its raised ground floor, the new building seeks the optimal height level for a smooth, barrier-free connection between the interior and the exterior.

Form and Hierarchy
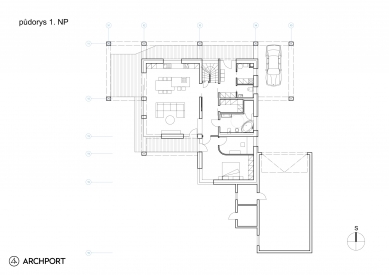
The building rigorously follows the morphology of the plot. Using a regular construction grid, it naturally retreats from west to east, freeing up space for the most valuable part of the garden, which the house opens up to as much as possible. A clear operational hierarchy separates the living spaces oriented to the greenery from the technical background with a workshop and a large garage, which forms a boundary towards the access area of the plot.

Grid and Detail
The chosen modular system dictates the overall character of the house – from the structural solution through the division of the interior space to the composition of the façades. This order is emphasized by the projecting arcade, formed by slender columns and beams with spans of 3550 and 5900 mm. The ratio of these distances is based on the golden section. The overall spatial composition is completed by a system of flat roofs, a recessed façade, and an accent of the corner chimney.
ARCHPORT
The English translation is powered by AI tool. Switch to Czech to view the original text source.
2 comments
add comment
Subject
Author
Date
Akustika
Josef Kuba
12.03.26 10:47
Blahopřeji
Mirko Baum
14.03.26 10:58
show all comments

more buildings from ARCHPORT