Palác Akropolis Offices

Palác Akropolis Offices
Coauthor: Kadir Sönmez
Spolupráce:David Pesek Muller, Mylana Sydorenko, Kateřina Zapletalová
Address: Kubelíkova 1548/27, Žižkov, Prague, Czech Republic
Investor:Realitní Fond Praha, Advokacie Praha, 2OPF
Project:2024
Completion:2025
Area:470 m2


Located in the historic Palác Akropolis in Prague’s Žižkov district, this 470 m² renovation transforms a previously enclosed and fragmented floor into a contemporary shared workspace. The interior atmosphere of the building was shaped in the 1990s by artist František Skála, who established a distinctive cultural character within the space. This renovation does not replicate that language, but translates its presence into a calm, legible and easy-to-use environment suited to contemporary work.
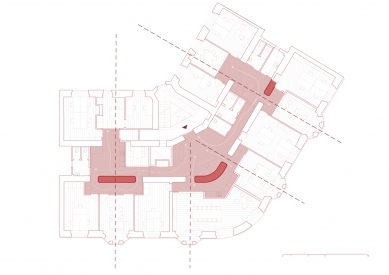
The design centers on a generous hub that functions as both a social core and a circulation spine, bringing visual and spatial continuity across the floor. Natural light enters from both façades, defining the main axis through the hub and reception areas and lending the interior a sense of depth.
The interior continues this clarity with a calm yet inviting palette of materials. Formerly dark corridors were reimagined as softly curved passages clad in red ceramic tiles, which have become one of the defining elements of the project. The same ceramic surface appears in lighter tones in the restrooms, softening the palette and establishing a quiet continuity across the floor.
These ceramic surfaces are balanced by natural oak flooring, furniture and window frames, which bring warmth and a grounded feel to the interior. Custom walnut meeting tables introduce a subtle tactile contrast in the shared areas, reflecting a focus on durability and well-made details. Lighting highlights the curved forms and surface textures, guiding movement through the space in a quiet and unobtrusive way.
The floor brings together workrooms and meeting spaces with different levels of openness. The teams sharing this level work around common themes of space, property and decision-making, which require both collaboration and focused individual work. For this reason, the design alternates between communal areas that encourage encounter and quieter rooms that support concentration. Glass partitions provide acoustic comfort while maintaining visual continuity, resulting in a cohesive and composed atmosphere.
In this way, the offices at Palác Akropolis reinterpret the cultural spirit of the building within the context of contemporary work. History is present here not as a focal motif, but as a quiet layer accompanying the experience of space. The result is an environment that balances productivity and ease, offering a warm, understated and enduring place to work.
Marco Maio Architects
0 comments
add comment

more buildings from Marco Maio Architects