O-Studio

O-Studio
Coauthor: Naoki Hayashida
Address: Kumamoto, Japan
Project:2022
Completion:2023
Area:96 m2


Photography: Kentaro Ito
In an era where energy is devoted to creating new architectural images and infusing complexity into every corner of a building (which could be described as another postmodern age), our intention was to design a building that would blend with its surroundings while evoking a sense of quiet excitement.
The small site is located in a typical residential neighbourhood, where most neighbouring homes are of modest height, integrating into the human scale. Despite their seemingly plain and unassuming appearance, the residential aesthetic of these Japanese neighbourhoods is deeply embedded within the fabric of the environment.
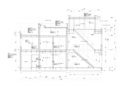
The client’s programmatic needs evolved over time. Through our studies of the site and design iterations, the final program emerged: a private office and studio on the second floor, with the ground floor dedicated to an accessible living unit, allowing family members to live independently.

We studied the site and explored multiple design options to meet the client’s requirements while creating honest architecture with a “super-ordinary” and approachable appearance. Although such architecture may appear simple, we observed that recent residential buildings in Japan are highly enclosed, isolating themselves from external elements like wind, light, and sound. With this in mind, we aimed to create a warm and new typology, working within the constraints of a two-story timber structure, off-the-shelf windows, and strict fire regulations. To achieve this, we incorporated subtle, playful elements such as terrace spaces, skylights, different textures, and hidden doors.
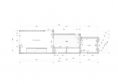
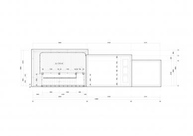
The result is a building divided into three distinct, independent towers, each reflecting the different functions housed within. From the street side, the “Private Tower” contains a soundproof studio and a bathroom; the “Peaceful Tower” houses a study and bedroom; and the “Watch Tower” features a living room and meeting room, offering views of the lush garden.
aki(architects)
0 comments
add comment