<title>French Communist Party Headquarters</title> French Communist Party Headquarters

<title>French Communist Party Headquarters</title>    French Communist Party Headquarters
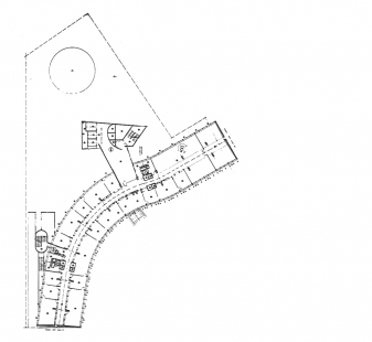
Architect: Oscar Niemeyer
Address: 2 Place du Colonel Fabien, Paris, France
Investor:Parti communiste français
Completion:1967-72
Area:20000 m2


Local architects: Paul Chemetov, Jean Deroche
Collaboration: Jean Prouvé, Hans Muller, José Luis Pinho, A. Gattos, Jean-Maur Lyonnet
Construction: Jean Tricot
My relationships with the French Communist Party have been characterized by understanding and friendship – and it remains so. Marchais, Leroy, Gosnat, and Tricot, for instance, have always treated me warmly and expressed respect and recognition. Such a relationship allowed me to approach the design of the new party headquarters at Paris's Place du Colonel Fabien completely freely. Here, I was assisted by Jean Prouvé, Jean de Roche, and Paul Chemetov. Our work was highly valued, and the building has become one of the city's favorite landmarks.
I remember the day when President Georges Pompidou hosted a festive lunch for all the architects involved in judging the competition for the Centre Pompidou. At the moment when someone at the table made a complimentary remark about the new party headquarters to Pompidou, who never hid his right-wing beliefs, there was only one thing to do: agree, "Yes, it was the only good thing the commies ever did." The praise was well-deserved – everyone admired the building.
However, my bonds with my good companions from the French Communist Party were not only tied to the popularity of the new building. Shared views and political struggle were much more important than architecture. We became good friends. How often Gosnat took me and his friends to Parisian restaurants! Gosnat usually led the group, choosing the menu, wine, and spirits. He was an amazing friend! The fact that the headquarters project turned out so well was mainly due to him and his trust in me.
(…) I remember how he suggested that I join him on a long train journey from the Soviet Union, across the Urals to China. And I also remember the day of his funeral and the crowded square; I was sitting on a special podium when the Party paid its final public tribute to our unforgettable comrade.

(…) Some of my best projects are built abroad: notably, for example, the headquarters of the Communist Party in Paris.

(…) During this, my fourth creative phase, the prevailing idea was not only to manifest the plastic freedom of my buildings but also to showcase the sophistication of Brazilian engineering. For each project, I carefully sought solutions, determined to clearly define the parameters of my architectural work. In the case of the party headquarters building, I demonstrated the importance of preserving the harmony of volumes and open space in the exterior, which also explains why the large hall for workers is located underground.
Oscar Niemeyer
The English translation is powered by AI tool. Switch to Czech to view the original text source.
5 comments
add comment
Subject
Author
Date
niemeyer is amazing
jean paul garnier none
18.12.07 06:12
niemeyer is amazing
R. Faria
25.09.08 04:09
beton
petr cagaš
29.10.09 10:10
Dobový televizní příspěvek
Petr Kalivoda
03.12.09 05:53
show all comments

more buildings from Oscar Niemeyer