Kachlová kamna s moderní technologií v tradiční krkonošské chalupě

08.12.2025 14:30
Hoxter, a.s.

 
V malebném prostředí Krkonoš, jen pár minut od Špindlerova Mlýna, se nachází zrekonstruovaná bývalá podniková chalupa, která dnes slouží jako rekreační objekt. Citlivá renovace zachovala horský charakter stavby, avšak s komfortem odpovídajícím současným potřebám – a to především díky novým kachlovým kamnům z dílny Kamnářství Volech.

"Když za mnou přišel investor s požadavkem rychlého nástupu tepla po příjezdu na chalupu a zároveň dlouhodobého sálání po dohoření, věděl jsem, že musíme postavit tradiční kachlová kamna, která ke krkonošským chalupám zkrátka patří, a zkombinovat je s moderní technologií akumulačního vytápění a hypokaustem," říká kamnář Zdeněk Volech, autor návrhu i realizace. 

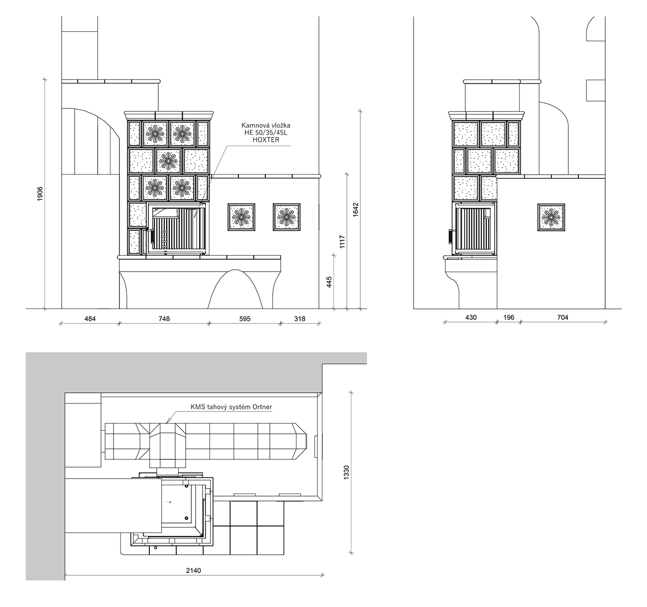
Výkresová dokumentace kamen. Vytvořeno v PaletteCAD.

Technické řešení pro rychlý nástup tepla i dlouhodobé sálání

Srdcem kamen je rohová kamnová vložka od firmy Hoxter, doplněná akumulačním tahovým systémem KMS rakouského výrobce Ortner. Vyzdívky a hypokaustní přepážky jsou z magnezitových cihel, jež výrazně zvyšují akumulační schopnost celé konstrukce. "Magnezitové cihly umějí uchovat velké množství tepla, takže kamna hřejí ještě dlouho po vyhasnutí ohně," vysvětluje Volech.

Kamna fungují nejen jako hlavní zdroj tepla v obývací části, ale konvekční proudění kolem vložky efektivně vytápí i přilehlou koupelnu a chodbu. Tahový systém zároveň přenáší teplo do akumulačního ležení, ideálního pro odpočinek třeba po horské túře.

Dvojité prosklení zlepšuje izolační vlastnosti dvířek a redukuje intenzitu sálavého tepla směrem do interiéru.

Rohové prosklení

"Skvělou volbou a příkladem netradičního designu je rohové prosklení, jež umožňuje sledovat oheň z různých úhlů a do místnosti vnáší vzdušnost a dynamiku," dodává kamnář. Velké prosklené plochy jsou tak živým obrazem rámujícím tančící plameny, který v chalupě vytváří jedinečnou atmosféru.

Takto navržená kachlová kamna jsou ukázkou toho, jak lze tradiční způsob vytápění sladit s moderním životním stylem. V krkonošské chalupě tak dnes stojí spolehlivý zdroj tepla, který nejen zaujme svým vzhledem, ale především vychází vstříc potřebám uživatelů domu a zajišťuje jim větší pohodlí.

www.banador.cz

0 komentářů
přidat komentář

Související články