![]() |
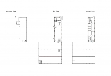
Na předměstí Porta, v rychle se rozvíjející oblasti Maia, vyrostla administrativní budova Tampografia Office Building, která představuje zdařilou ukázku současné portugalské architektury. Projekt vznikl v rámci místního urbanistického plánu, jehož cílem je vytvořit podmínky pro moderní podnikání a rozvoj menších firem. Stavba dokončená v roce 2021 přitahuje pozornost svou minimalistickou elegancí a zpracováním detailu. Budova se stala příkladem udržitelného, funkčního a esteticky působivého komerčního objektu.












