Apartmán v Dlouhé

Apartmán v Dlouhé
Projekt:2015
Realizace:2015-17


Fotografie: Jiří Šebek
Stínící prvky: Arthe studio
Víkendový apartmán v duchu Las Vegas
Přítmí, ambientní barevné osvětlení, třpyt křišťálu a lesk. Spojení zábavy a exkluzivně zpracovaného interiéru. Tak by se dal popsat apartmán, který jako by byl z amerického Las Vegas. Jedinečnou atmosféru luxusních hotelů může zažít i majitel bytu v pražské Dlouhé ulici. Z původního dvojpokojového bytu jsme vytvořili prostor, ve kterém je pobyt zážitkem.
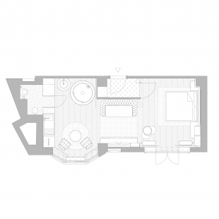
Apartmán, je maximálně přizpůsobený požadavkům majitele, který snil o prostoru pro pohodlené trávení víkendových večerů při návštěvě metropole. Odstranili jsme příčky a byt nově uspořádali do zákoutí tak, abychom vytvořili pocit velkorysého otevřeného prostoru. Jednotlivá zákoutí na sebe plynule navazují a přecházejí jedno v druhé.
Kuchyňský kout a toaletní skříňka jsou schované do vestavěné skříně, která ukrývá i vstup na toaletu. Součástí otevřeného prostoru naopak zůstal na míru vyrobený sprchový kout doplněný umyvadlem z italského mramoru a zlaceným zrcadlem ve tvaru slunce.
Střed apartmánu je určen k zábavě. Širokoúhlá televize spojená s prvotřídní audiotechnikou je doplněná minibarem a pohodlnou sedačkou ve stylu Chesterfield. Zákoutí doplňuje mříž z leštěné mosazi evokující náladu artdecových interiérů.
Klidný a osvěžující spánek po nabytém večeru si může majitel dopřát v kontinentální posteli, vložené do nábytkové stěny, ve které jsou pro klienta připraveny decentně skryté prvky pro ovládání vybavení bytu a pro nabíjení telefonu.
Všechny prvky v interiéru jsou vyrobeny z jedinečných materiálů, jako jsou mahagonová dýha, přírodní kámen nebo pozlacená mosaz.
Barevnost nábytku, textilií i drobných doplňků jsme zvolili s ohledem na přání investora. Svůj podíl na kýžené atmosféře bytu mají také prvotřídní osvětlovací prvky.
Pohodlná obsluha osvětlení, spotřebičů i multimediální zábavy v bytě je zajištěná inteligentní domácností. Díky které je vytvoření příjemné atmosféry, spuštění hudby a osvětlení otázkou jednoho stisku vypínače u vchodových dveří. Vše ostatní už zajistí předem naprogramované nastavení.
Na závěr je nutné dodat, že většinu prvků (stolek, sprchový kout, zrcadla nad umyvadly i mříž), jsme nechali vyrobit na míru. Díky trpělivosti investora a jeho velkorysému přístupu bylo možné interiér dotáhnout k dokonalému výsledku.
SKARCH
0 komentářů
přidat komentář

Více staveb od SKARCH