Dům se dvěma dvory

Dům se dvěma dvory
Adresa: Kaitersbergstraße 8, Bad Kötzting, Německo
Projekt:2018
Realizace:2025
Užitná plocha:99 m2
Náklady:270 000 Euro


Krajinářské úpravyMaurus Schifferli
Umělecká spolupráce: Hans Sailer
Fotografie: Mikael Olsson
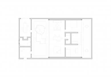
Dům se dvěma dvory se nachází v Bavorském lese. Návrh vznikl bez jakéhokoliv kontextu. Je záměrně izolovaný od svého okolí. Pochopit ho lze jen tehdy, když do něj vstoupíte. Dům osvětluje dvojice vnitřních dvorů. Společenské místnosti se otevírají do velkého dvora a soukromé prostory jsou obráceny do malého dvora. Z místnosti s krbem, kdo které se lze dostat přes velký dvůr, se otevírá vzdálený výhled na hory Bavorského lesa. Dům je celý odlitý z pohledového betonu.
Alexander Mühlbauer

Dům se skládá ze tří zahrad, z nichž dvě fungují pouze jako monumentální krajinné obrazce a nelze se jimi procházet. Zahrady jsou fyzickým projevem viditelného světa takového, jaký je a naše konání ho nemůže zcela změnit. Zahrady odkazují na vesmír a věčnost, v níž se člověk, místo aby jednal na základě viděného, snaží osvobodit nejen od jakéhokoli vlivu na nás. Prostředí je navržené tak, aby se mohl odhalit a objevit tajemné místo, které mu pomůže objevit sebe samého. Prostředí také probouzí touhu, která se odvažuje vydat někam dál, než by se dalo racionálně změřit. Člověkem utvářené zahrady činí svět nesnesitelnějším, protože se zdá, že vše, co brání pohledu diváka objevit to, co z celku - vesmíru - zbývá. Po odstranění všeho zbytného, mohou být odloženy i falešné iluze. Pouze redukce na základní prvky probouzí sílu a touhu tvořit velké věci.
Maurus Schifferli
0 komentářů
přidat komentář