Dům se stodolou

Dům se stodolou
Projekt a realizace:Chytrý dům s.r.o.
Projekt:2023
Realizace:2024-25
Užitná plocha:195 m2


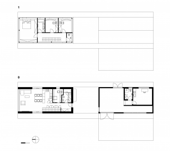
Rodinný dům Kolín od studia 0,5 Studio je elegantně a střídmě navržená novostavba, která díky své jednoduché formě zapadá do krajiny na rozhraní pole a dubového lesa. Projekt vznikl z požadavku na propojení domu s okolní přírodou. Dům vychází z archetypu rodinného domu se stodolou, pracuje s výrazným hmotovým kontrastem a ikonickou "odříznutou" vyhlídkou – pásmem panoramatických oken v horním patře, které otevírá výhledy do široké krajiny.
Samotný dům má převýšenou, dominantní kompozici, zatímco přístřešek a stodola působí lineárně a obslužně. Přízemí tvoří otevřený obytný prostor s kuchyní, pracovnou a zázemím. V horním patře se nacházejí dětské pokoje, ložnice, koupelna a WC. Přístřešek nabízí chráněné venkovní posezení a stodola slouží jako parkovací i tvůrčí prostor.
Exteriér je obložen černými horizontálně kladenými prkny, která zdůrazňují horizontální linii krajiny a zároveň vytvářejí kontrast ke světlému dřevěnému interiéru v jemných, světlých odstínech. Díky velkým oknům a otevřenému obytnému prostoru je interiér úzce propojený se zahradou i okolní přírodou. Čisté linie a přírodní materiály, zde vytvářejí klidné a harmonické prostředí respektující kontext pozemku i potřeby jeho obyvatel.
Horní patro funguje jako vyhlídka do krajiny, zatímco podlouhlá hmota stodoly doplňuje kompozici domu a odkazuje k tradičnímu hospodářskému stavitelství. Projekt tak spojuje moderní pojetí bydlení s citlivým vztahem k místu.

Technické řešení
Energetický koncept stavby využívá tepelné čerpadlo země-voda, podlahové vytápění a trojskla s vysokými izolačními vlastnostmi.
0 komentářů
přidat komentář

Více staveb od 0,5 Studio