Interiér bytu

Interiér bytu
Autor: Jan Tesař
Realizace:2007
Užitná plocha:140 m2


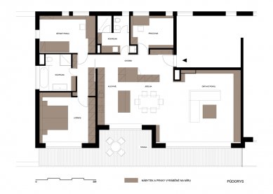
Jedná se o návrh kompletního vybavení interiéru v novostavbě bytového domu v Brně, a to včetně doplňků a nádobí v kuchyni.
Kromě nosných stěn bylo součástí návrhu i řešení příček a příprava některých technických úprav vytápění, větrání a elektroinstalací.
Provozně lze plochu bytu rozdělit na část společenskou (obývací pokoj, jídelna a kuchyně) s přilehlou terasou a na část klidovou (dvě koupelny, pracovna, dětský pokoj a ložnice). Tyto části jsou od sebe odděleny průběžnou zalomenou chodbou, která je u vstupu rozšířena v rámci vloženého ostrůvku vestavěných skříní. Chodba je po celém svém obvodu obložena deskami s dýhou zebrano, v některých místech jsou vestavěné skříně a dveře do pokojů.
Kuchyně je z lakovaných desek v barvě teplé velmi tmavé šedé, část skříní v jídelně a obývacím pokoji je obložena lakovaným sklem v barvě šedozelené.
Nábytek v ložnici je z lakovaných desek v barvě lomené bíle, část nábytku v dýze macassar.
Veškeré úchytky jsou vyrobeny z nerezové oceli na míru, podlaha v celém bytě je kromě koupelen z lamel s masivní voskovanou dubovou dýhou.
8 komentářů
přidat komentář
Předmět
Autor
Datum
interiér bytu
Tomáš Vostatek
15.11.07 10:58
souhlasim
Michal Just
19.11.07 01:54
díky
Tomáš Vostatek
01.12.07 11:53
Nevím, nevím
Dizi
23.01.08 02:55
super
tantemici
29.09.08 04:38
zobrazit všechny komentáře

Více staveb od Jan Tesař