Lékárna Hradební

Lékárna Hradební
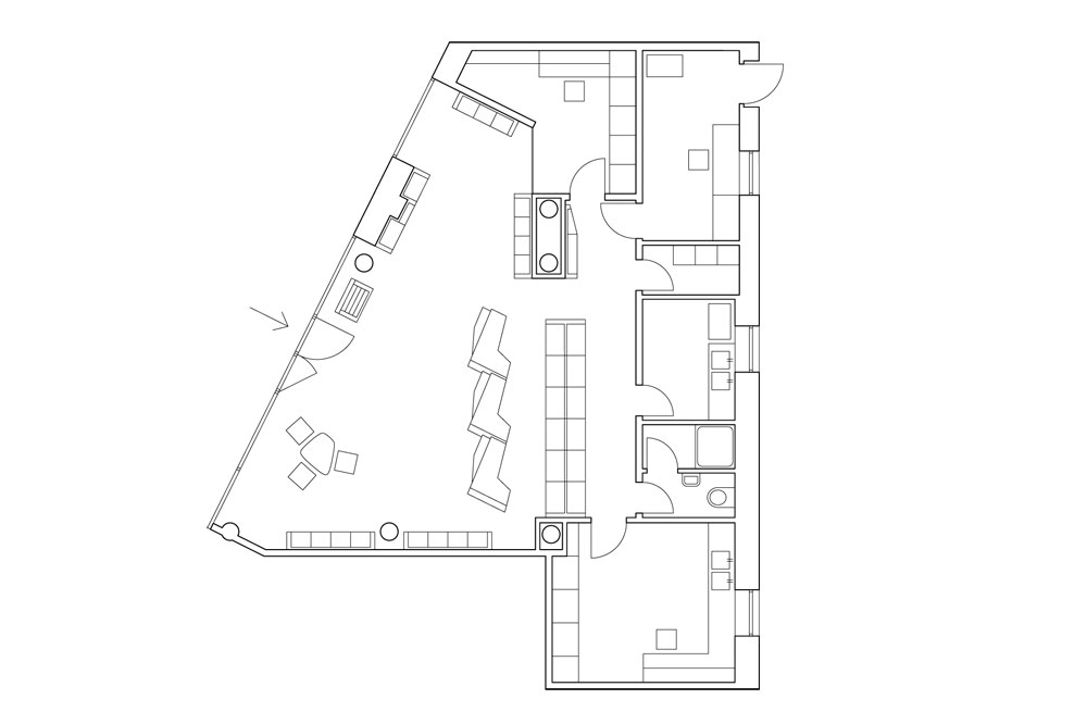
Lékárna je situována v parteru nově vystavěné polyfunkční budovy v centru Uherského Hradiště.
Současně se zadáním na řešení lékárny byl pro stejnou klientku zpracováván návrh revmato- logické a osteologické kliniky, která se nachází ve stejné budově. Logickým požadavkem klientky bylo proto propojit tyto úlohy stejnými výrazovými prostředky udávající shodný materiálový i tvarový tón. Pro oba zdravotnické provozy byla zvolena bílá barva jako sjednocující a charakteristický výrazový prostředek.

Původní prázdný komerční prostor byl rozdělen sádrokartonovými příčkami na jednotlivé pracoviště a potřebné zázemí lékárníků a především samotný prodejní prostor. Do prodejní části byly vloženy na míru navržené kusy nábytku. Vitríny jsou zavěšené na ztužených sádrokartonových stěnách. Včele vstupní prosklené plochy jsou situovány tvarově výrazné prodejní pulty, které vznikly jakoby roztržením na tři části. Společně s vitrínami přispívají k odlehčení prostoru. Každý pult má ve svých útrobách navrženy odkládací police, výsuvy, prostor pro počítač a slouží jako samostatná prodejní jednotka. Velká nábytková předstěna, jež vytváří optický předěl mezi provozní a prodejní částí lékárny slouží jako úložiště nejčastěji frekventovaných léků. Stěna je oboustranná a ze strany zázemí současně slouží jako příruční sklad léčiv.

Vysoký standard zvolených materiálů byl samozřejmostí již od zadání. Nábytek je vyroben z lakovaných MDF desek ve vysokém lesku. Po dlouhém výběru byla podlaha, z praktických důvodů, zvolena v šedé velkoformátové dlažbě. Bílý prostor je zabarven RGB LED pásky, které vyakcentovávají prodejní plochy. Světelné zvýraznění prostupující přes rozsáhlé zasklení do uličního parteru, slouží zároveň jako jasně rozpoznatelný světelný poutač. Hlavní nasvětlení tvoří zapuštěné linie zářivek integrovaných do sádrokartonového podhledu.
0 komentářů
přidat komentář

Více staveb od Next Level Studio