Veterinární klinika ABVET

Veterinární klinika ABVET
Realizace:2024, znovuotevření po rekonstrukci po povodních 2025
Užitná plocha:595 m2
Zastavěná plocha:665 m2


Veterinární kliniku ABvet v Bohumíně navrhli Patrik Zamazal a Pavel Griz z ateliéru MOLO architekti. Jednoduchý přízemní objekt s dřevěnou fasádou, velkými prosklenými plochami a extenzivní zelenou střechou vytváří otevřené a přívětivé prostředí pro klienty i jejich zvířecí pacienty. Stavba je usazena mezi vzrostlé stromy přilehlého parku a její nízká hmota má charakter pavilonu, který se bude postupně vpíjet do okolí s tím jak bude stárnout dřevo na fasádě. Dopravně je napojena přes stávající veřejné parkoviště, takže má přirozený odstup od rušné městské komunikace.

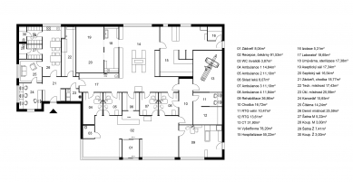
Dispozice byla řešena tak, aby bylo jasně oddělené veřejné zázemí s recepcí a čekárnou od odborných prostor – operačních sálů, hospitalizace a technického zázemí. Šev mezi veřejnou a odbornou částí tvoří čtyři průchozí vyšetřovny. Ty tvoří hlavní zázemí pro komunikaci lékaře s klientem. Čekárna je rozdělena na dvě části, aby se pacienti přirozeně oddělili podle druhů a byli tak minimálně vystaveni stresu. Interiér veřejných prostor využívá přírodní materiály, dostatek denního světla a přehlednou orientaci, aby se v něm dobře cítili jak lidé, tak zvířata. Hlavní medicínský prostor, kde probíhají menší a přípravné úkony, je velkoryse prosvětlený denním světlem s výhledem do přilehlého parku. Dva operační sály jsou vybaveny ve standardu humánní medicíny. Materiály povrchů a stavebních prvků jsou přísně podřízeny charakteru provozu. Odolají drápům, pařátům i kopytům, jsou omyvatelné.

Kvůli nízké úrovni podzemní vody byl pro založení použit princip plovoucí betonové desky na tepelné izolaci. Konstrukce obvodových stěn i střechy je lehká dřevostavba two by four, montovaná na místě. Zelená střecha v kombinaci s fotovoltaickými panely a tepelným čerpadlem zajišťuje šetrný provoz a dlouhodobou udržitelnost budovy.

Na podzim 2024 kliniku zasáhla ničivá povodeň, která ochromila její provoz. Voda zaplavila nové prostory a objekt musel být dočasně uzavřen. Díky tomu, že byla konstrukce dřevostavby od počátku odsazená od základové desky - původně jako ochrana v případě havárie vody – nezůstala dlouho ve vodě a mohla rychleji vyschnout. Toto prozíravé řešení usnadnilo následnou rekonstrukci. Provoz kliniky byl definitivně obnoven na jaře 2025.

Dnes je klinika opět v provozu a pokračuje v poskytování veterinární péče svým pacientům.
0 komentářů
přidat komentář

Více staveb od MOLO ARCHITEKTI