Vila Montasser

Vila Montasser
Adresa: Chem. de la Plage, Mies, Švýcarsko
Projekt:2022
Realizace:2024


Fotografie: Rory Gardiner
Ferdinand Hodler (švýcarský secesní malíř 1853-1918, který vynalezl vlastní styl tzv. paralelizmus) maloval stále dokola hory odrážející se ve švýcarských jezerech. Byl posedlý touto obrácenou krajinou, která se neustále měnila s oblohou a větrem vanoucím po vodní hladině. V roce 1867, kdy bylo Hodlerovi čtrnáct let, namaloval svá první jezera a prodával je kolemjdoucím turistům. V roce 1918, tady o půlstoletí později, zemřel v Ženevě a zanechal po sobě několik nedokončených skic hory Mont-Blancu odrážející se v Ženevském jezeře, jak ji viděl z balkonu svého bytu.

Symetrické odrazy
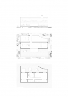
Vila Montasser se nachází u překrásného Ženevského jezera s výhledem na Alpy. V reakci na majestátní krajinu se budova snaží zůstat co nejjednodušší a nejskromnější. Dlouhá jednoduchá fasáda představuje prázdné plátno, v němž se odráží stejně dlouhá vodní plocha. Jediné panoramatické okno se otevírá na terasu, která má podobné rozměry jako otvor. Odraz komína ve vodní ploše se mění na schodiště vedoucí k bazénu. Na vodní hladině je umístěn bludný balvan, který sem postupně přinesly pravěké ledovce z alpských masivů až na břeh Ženevského jezera. Hlavní fasáda je symetrickým odrazem, poctou horizontální linii oddělující tyčící se hory a zrcadlící se jezero v Hodlerově díle.
Protáhlý obdélníkový půdorys, jehož tvar silně omezily místní stavební předpisy, se uvnitř odvíjí na třech výškových úrovních. Zatímco obytné prostory v přízemí se z velké části otevírají do okolí, tak ložnice v suterénu se otevírají do uzavřeného dvora naplněného tenkou vrstvou dešťové vody posbírané ze střechy. Světlo se odráží od dvojice umělých vodních nádrží před vstupem do domu a promítá své roztančené odrazy do interiéru na dřevěné stěny a strop.
Leopold Banchini
0 komentářů
přidat komentář

Více staveb od Leopold Banchini