Vila MT

Vila MT
Rodinná vila MT se nachází na západním okraji města Nové Mesto nad Váhom, v lokalitě běžného, bujně se rozvíjejícího urbánního celku s nejasně stanovenými pravidly výstavby. V tomto případě tedy nešlo o snahu zapadnout či navázat na (ne)existující kvality prostředí. Cílem bylo navrhnout dům, který nabízí hodnotné bydlení, architektonickou a materiálovou čistotu, vhodné měřítko a parter, jenž neslouží pouze svým uživatelům za vysokým oplocením. Polootevřený parter, který je přínosný nejen pro obyvatele domu, ale i pro přilehlý uliční prostor, byť zatím jen jako zlomek z velkého celku.

Přední dvůr, z velké části tvořený výraznou hrou hmot a sjednocujícím prvkem přesahu střechy, je definován jako nezávislý venkovní prostor opticky i pocitově rozšiřující interiér domu.

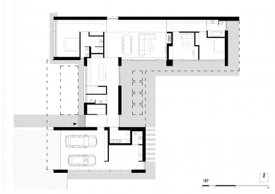
Jednopodlažní schéma vychází z programu zvoleného investorem. Svým hmotovým uspořádáním vytváří atraktivní vizuální vztahy a průhledy mezi jednotlivými funkčními celky. Dům je funkčně rozdělen na čtyři zóny – dvojgaráž s dílnou a technickým zázemím domu, vstupní část s kuchyní, obytnou část s jídelnou, na kterou navazuje plně vybavená hlavní ložnice majitelů, a zónu dvou pokojů s koupelnou pro děti resp. vnoučata. Poslední zóna je záměrně orientována tak, aby se v případě nevyužívání mohla bez velkého dopadu na komfort odpojit od vytápění či chlazení.

Dům tvoří dvě hlavní hmoty – garáž a obytná část – vzájemně propojené třetí hmotou, vstupem s chodbou a kuchyňským zálivem. Významným architektonickým prvkem je samotná stropní deska. Kompoziční hra, kdy je deska jednou vetknutá do hmoty, jindy podepřená travertinovou stěnou či odlehčená rozměrným světlíkem, parafrázuje a odkazuje na meziválečnou architekturu a díla Miese van der Rohe a Richarda Neutry. Vykonzolovaná stropní deska všechny hmoty spojuje, vytváří účelné chráněné venkovní prostory a dodává domu nápaditou horizontalitu. Navzdory použití jen několika okenních otvorů směrem do ulice je tato fasáda živá svou proměnlivou hloubkou, hrou stínů a průhledů. Do zahradní části je dům naopak zcela otevřen prosklenou posuvnou fasádou, nad níž se opět vznáší přesah stropní desky. Stejně jako přijímat slunce, dokáže se dům hmotou střechy pasivně bránit nežádoucímu přehřívání. Tento přesah v kombinaci s prosklenou fasádou a navazující terasou generují další atraktivní prostor, který zvětšuje obytnou plochu interiéru zejména během teplých letních dní.

Prostorový koncept obohacený o zvýšenou zónu v obývací části a jídelně doplňují výplně otvorů a vestavěný nábytek v plné světlé výšce podlaží. Interiéru dominuje přírodní odstín dubového dřeva. Je použit na podlahách, obkladových panelech stěn, vestavěných truhlářských segmentech a lamelách podhledu v místě zvýšení obývací zóny. Dýhované segmenty jsou doplněny matně či leskle lakovanými plochami v odstínech šedé, na vybraných místech zpestřené vínovým odstínem. V určitých částech interiéru tak vznikají plně obložené pasáže intimního až butikového charakteru.

Základní dubovo-šedá paleta je doplněna jemnou kresbou brazilského křemence a černé žuly použité v kuchyni a na krbové stěně. V koupelnách je použit šedý keramický obklad v důsledném spárořezu, opět v kombinaci s dýhovaným vestavěným nábytkem.

Bohaté denní proslunění všech místností doplňuje promyšlený systém umělého osvětlení. Ten je tvořen vestavěnými směrově nastavitelnými reflektory v kombinaci se skrytými LED pásy v zalomeních podhledů, umožňující náladové nasvícení interiéru.

Úsporu energie na vytápění a nepřetržitou výměnu vzduchu zajišťuje větrací jednotka s rekuperací vzduchu a vlhkosti. Dům využívá tři zdroje vody – přípojku městského vodovodu, vlastní studnu jako zdroj užitkové vody pro sociální části domu a dešťovou vodu pro účely závlahy zahrady.
0 komentářů
přidat komentář