Vinařství Lahofer

Vinařství Lahofer
Spolupráce:Hanin Al-Gibury, Victor Cojocaru, Laura Emilija Druktenytė, Karolína Holánková, Martin Holý, Adam Jung, Vojtěch Kouřil, Zuzana Lisoňová, Ondřej Mundl, Zuzana Pelikánová, Matěj Štrba, Gabriela Voláková, Lenka Vořechovská, Zuzana Záthurecká
Adresa: Vinice 579, Dobšice, Česká republika
Investor:Vinařství Lahofer, a.s.
Projekt:2015-17
Realizace:2017-20
Užitná plocha:3900 m2
Zastavěná plocha:3842 m2
Náklady:120 000 000 CZK


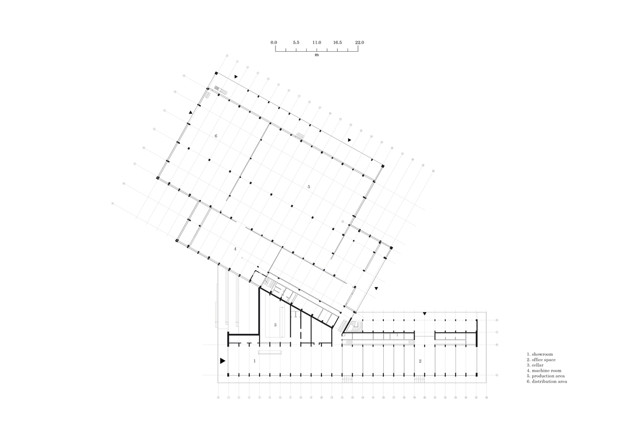
První červnový den se pro širokou veřejnost otevřela nová budova Vinařství Lahofer ve vinici U Hájku mezi obcemi Dobšice a Suchohrdly na Znojemsku. Moderní objekt, který vzešel z pera brněnské architektonické kanceláře Chybík+Krištof, v sobě spojuje jak výrobní a administrativní funkci, tak vnitřní prostor pro návštěvníky a venkovní amfiteátr. V něm hodlá Vinařství Lahofer již tuto letní sezonu pořádat kulturní akce. Ve vnitřní části určené pro návštěvníky budou moci lidé ochutnat kompletní sortiment Vinařství Lahofer, firma tu hodlá pořádat řízené degustace, ale i firemní či soukromé akce. V budově vzniklo pět nových pracovních míst.
Atypická stavba začala na podzim roku 2017 a dokončena byla po dvou letech. Výrobní část zahrnuje lisovnu, sklep s kapacitou kolem tři čtvrtě milionu litrů v tancích, skladovací prostory a moderní lahvovací linku, v kancelářské části našli zázemí administrativní pracovníci vinařství. Kanceláře přitom v otevřeném prostoru přímo navazují na návštěvnickou část. „Ta bude sloužit jako kombinace prodejny našich vín, degustační místnosti, vinotéky a místa pro posezení s přáteli nad skleničkou vína. V navazujícím malém sklepě je prostor pro menší degustace do 15 osob. Pro návštěvníky asi nejzajímavější částí bude pochozí střecha, která bude sloužit jednak jako vyhlídková terasa do širokého okolí, v létě pak i jako hlediště při plánovaných kulturních akcích,“ sdělil marketingový a obchodní ředitel Vinařství Lahofer Daniel Smola.
Návrh budovy vznikl v brněnském studiu Ondřeje Chybíka a Michala Krištofa. Organický tvar „betonové vlny“, jak se návštěvníkovi může nová budova Vinařství Lahofer jevit, vyjadřuje respekt k vinařskému řemeslu a k jeho tradici a svým elegantním reliéfem chce se svým okolím nenásilně splynout. Vždyť i hlavní myšlenkou návrhu je motiv vinných řádků, které prostupují budovou v podobě konstrukčního systému. „V reprezentativní části dochází ke kolmému průniku archetypálního klenutého prostoru do konstrukčního systému tvořeného železobetonovými žebry, jejichž modul vychází z šířky vinného řádku a prochází celým domem,“ vysvětlují architekti.
Vinařství Lahofer, a.s. (www.Lahofer.cz) je jedním z největších pěstitelů vinné révy v České republice. Obhospodařuje 430ha vinic výhradně ve Znojemské vinařské podoblasti včetně vyhlášených tratí jako Lampelberg, U Hájku, Babičák či Volné pole. Z bílých odrůd jsou nejvíce zastoupeny Ryzlink rýnský, Veltlínské zelené, Sauvignon, Tramín červený, Rulandské šedé, Rulandské bílé, Müller Thurgau, Muškát moravský, Pálava či Neuburské, z červených pak Rulandské modré, Frankovka, Zweigeltrebe, Svatovavřinecké a Dornfelder.
Skupina firem Lahofer (kromě Vinařství Lahofer ještě Vinice Lahofer, Hotel Lahofer, Vinařství Hanzel a Vinotrh.cz) zaměstnává 120 pracovníků a ročně prodá okolo 800 tisíc lahví vlastních vín. Roční obrat firmy činil vloni zhruba 90 milionů korun.
Lahofer vinařství
0 komentářů
přidat komentář

Více staveb od CHYBIK + KRISTOF