House at Rozkoš

House at Rozkoš
Address: Náchodsko, Czech Republic
Completion:05/2024
Area:198 m2
Built Up Area:253 m2


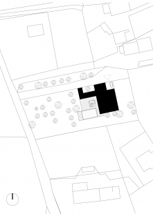
The family house near Rozkoš was designed as a modern single-story wooden building with an emphasis on connecting the interior with the garden and the landscape.

We maximally accommodated the family's request for the house to provide enough privacy, to communicate with the parents' house on the eastern side, and to open up towards the orchard and arrival via an atrium – an intimate part of the courtyard – on the south. On the northern side, the house is situated on a terrain break with a view down into the village.

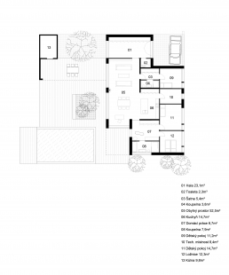
The layout divides the house into two main parts: the day zone with a living space and dining area and the private part with bedrooms, a study, and hygiene facilities. The living area connects to a generous wooden terrace. Under its covered part, there is a long communal table, while the other side of the terrace is framed by a natural swimming biotope. This, along with the green roof, contributes to a pleasant microclimate around the house.

The facade combines gray corrugated sheet metal and larch. The metal "shell" appears closed off from the outside, but towards the atrium, the house opens up and reveals the warm tone of the wood. Untreated larch naturally ages – the covered areas retain a honey hue, while the uncovered surfaces gradually acquire a noble gray patina. The perforated sheet on parts of the windows serves as an elegant detail and practical protection against rain and, in combination with a net, also against insects.

The result is a harmonious composition of simple shapes and natural materials. The house respects its surroundings, naturally ages with the garden, and provides the family with a comfortable living space full of light, views, and connection to the landscape.

And just like the family, the house evolves. Clients return to us – trusting that we will be their partner in the next stage of the house's life. Together, we seek solutions to transform children's rooms into spaces for teenagers and how to supplement the house with a standalone studio in the garden. From the beginning, we designed the house to be as flexible as possible. This allows the project to grow naturally with its inhabitants and continuously meet their needs in the best possible way.
The English translation is powered by AI tool. Switch to Czech to view the original text source.
0 comments
add comment

more buildings from MOLO ARCHITEKTI