Home Again

Home Again
Project:2021
Completion:2025
Area:314 m2
Built Up Area:190 m2
Site Area:390 m2


Houses have long lives. Usually, they are planned by two people. Before they are built, those two become three or even more. Then the house lives according to plan until, after not such a long time, there are just two again. It's not wrong – quite the opposite. But few plans reach that far. The house in Prague's Břevnov district has reached that stage. So what next? To live in nostalgia? Or simply live?

The original building from the 1950s was renovated in 2000 based on a design by ADR to meet the needs of a family of five. The current renovation adapts it into a comfortable home for a married couple, with additional spaces for family and friends to gather.

From the outside, the house does not immediately reveal the depth of the internal reconstruction. The most visible change to the exterior comes from the reconfigured second floor, where a generous dormer with frameless glazing facing the garden replaced two smaller original windows.

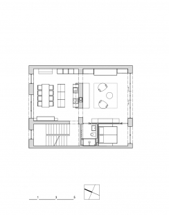
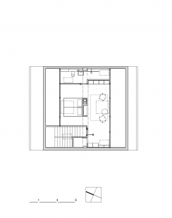
The internal layout of the house was significantly redesigned. The entrance at the lowest level was enlarged and brightened thanks to new glazed entrance doors, the removal of suspended ceilings, and an overall change in the choice of materials and color scheme. On the ground floor, in direct contact with the garden, lie the main living spaces - the living room, kitchen with dining area, and bedroom. By reducing the width of the garden opening and making several small adjustments, space was created for a bedroom with an en-suite bathroom. On the upper floor, the rooms that once served as children's bedrooms were transformed into a "salon" for family gatherings during special occasions and, at the same time, a home "cinema" and guest room. The bathrooms and the remaining room were also redesigned. The attic was remodeled to allow guests to stay for longer periods while maintaining privacy for both hosts and guests. The entire attic layout, including the bathroom, was redesigned.

In addition to layout changes, the exterior surfaces, colors, and materials were adjusted, and the interior was almost completely transformed. Outwardly, the house gained a calmer expression thanks to a muted color palette. The new, contemporary window arrangement improved both the building's appearance and the lighting of the interior. The facade plaster was applied in a fine 1 mm texture, combined with rough plaster containing sprayed stone granules. The new windows, unlike the previous ones with a historicizing design, were created in a contemporary style – both in composition and construction. Oak-framed windows with external glass overlays, frameless glazing, and windows with bleached spruce frames all respond to the interior character, subtly revealing the difference between original and new openings.

Inside, several original elements were retained and complemented - for example, the galvanized steel railing, which, by linking the main and secondary stair landings, gained a distinctive "non-Prague" character. The original parquet floors and galvanized metal skirting boards were restored and extended. The color scheme of the walls was softened to shades of white and gray, allowing the artworks to stand out. Some walls were clad in natural-toned plywood. The bathrooms underwent a complete transformation, both spatially and aesthetically. White tiles in a 3×1 m format are complemented by terrazzo flooring and solid oak furniture. Fixtures and fittings were also replaced. The original interior doors with transom windows were renovated, while new doors were designed with concealed frames.

Above all, the interior is a collection of objects gathered throughout a lifetime with care and thought - objects that connect the owners to people and events. More than a collection of items, it is a collection of people through those items. The stove in the living room was made by a friend, Jurgen Rajh; the solid wood joinery was crafted by the owners' son, Jakub. The glass sculpture resting on the stove is a work by their friend Dana Vachtová. The textiles in the interior were sewn by the owner from wool brought from Scotland, while the pendant lights above the dining table were found at a Danish flea market. The concrete tiles on the terrace come from a concrete plant near the Javornice distillery – another of the owner's "stories." As with the first renovation, this second transformation of the house is unsurprisingly also connected with friends who are architects. Every centimeter of the house is "covered in stories" - rational and impulsive decisions alike – a true reflection of its inhabitants.
0 comments
add comment

more buildings from Mimosa architekti