Dom v Dolnej Lehote

Dom v Dolnej Lehote
Koncept sadových úprav:Lenka Gulačová
Adresa: Dolná Lehota 354, Dolná Lehota, Slovensko
Projekt:2017
Realizace:2025


Fotografie: Tomáš Krištek
Podobu rodinného domu situovaného na úpätí Nízkych Tatier v historicky tradičnej stredoslovenskej dedine už od počiatku definovalo okolité prostredie a okolnosti jeho výstavby. Rozľahlý pozemok sa nachádza na samotnom konci dediny a priestorovo uzatvára skupinu domov, ktorých majitelia a zároveň rodinní príbuzní obývajú toto miesto už celé generácie. Silné väzby k hodnotám tohto horského prostredia spojené s pamäťou na niekdajšiu podobu pôvodných dreveníc sa premietli do architektúry stavby nielen v podobe archetypálnej hmoty so sedlovou strechou, ale aj do formy konštrukčného riešenia a urbanistickej kompozície.

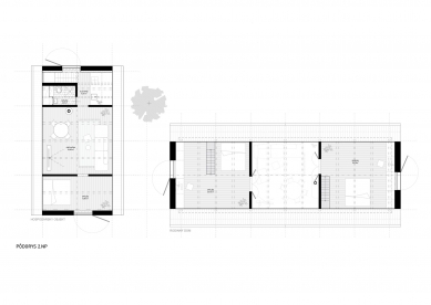
Architektonicko-stavebný princíp dvoch hlavných objektov je založený na drevenej skeletovej konštrukcii, usporiadanej do jednotnej modulovej sústavy 2,5x2,5 m. Takéto riešenie bolo zvolené hneď z niekoľkých dôvodov. V prípade stavby samotného rodinného domu umožňuje jeho vnútorný priestor členiť na tri rovnaké polia v závislosti od ich funkcie. Tak ako sa v pôvodných roľníckych dreveniciach vchádzalo do centrálnej siene / pitvora, na ktorú nadväzovala z jednej strany izba a z druhej komora, tak sú v tomto prípade analogicky vymedzené polia domu na centrálnu obytnú časť, spálňu s kúpeľňou a hospodársku časť v podobe kuchyne, špajze a vstupnej haly. Rovnaká konštrukčná sústava v podobe dvoch modulov bola použitá aj v menšom objekte prístrešku na parkovanie s dielňou. Druhým a nemenej dôležitým faktorom bola však možnosť svojpomocnej výstavby takejto stavby. Odvolávanie sa na tradičné ľudové staviteľstvo tak v tomto prípade nie je len formálnym gestom v podobe použitej materiálovej škály alebo architektonickej hmoty, ale aj prinavrátením ručnej práce, komunitného spôsobu vidieckeho života a technickej zručnosti majiteľov. Po vyprojektovaní a príprave jednotlivých dielov základnej konštrukčnej sústavy prebiehali počas nasledujúcich šiestich rokov takmer všetky práce pod rukami jednotlivých členov rodiny, rodinných príbuzných a priateľov. Takýto postup navyše umožnil okrem značného zníženia finančných nákladov autorom testovať a v procese výstavby prispôsobovať jednotlivé na mieru navrhované detaily.

Tomu napokon zodpovedá aj samotná architektúra domu. Jej cieľom bolo pretransformovať tieto tradičné architektonické princípy do novej podoby tak, aby pri zachovaní jednoduchej stavby vznikol vzdušný a presvetlený priestor, reflektujúci potreby súčasného bývania s dôrazom na remeselný detail. Všetky obytné priestory sú preto navzájom vizuálne prepojené. Hlavný obytný priestor v strednej časti dispozície je otvorený aj do podkrovia a prepojený v exteriérom pomocou posuvnej presklenej fasády. Podkrovné priestory nad zónou kuchyne a spálne sú naopak využité ako hosťovské izby. Konštrukcia dreveného skeletu je v interiéri priznaná a tvorí tu dôležitý výtvarný prvok. Farebne ju dopĺňa tradičná hlinená podlaha v okrajových poliach dispozície a jednoduchá biela omietka deliacich stien na prízemí. Z vonkajšej strany domu sa biela omietka mení na štrukturovanú hrubozrnnú. Štítové steny domu sú naopak obložené šedým dreveným latovaním, ktoré spolu s plechovou strechou zvýrazňujú jednoduchú geometriu stavby.

Rovnaký architektonicko-výtvarný princíp je použitý aj v na stavbe parkovacieho prístrešku. Ten je situovaný kolmo na hlavný objekt domu, z urbanistického hľadiska vytvára jeho nástupný priestor a zároveň opticky uzatvára vonkajšie pobytové spevnené plochy na západnej strane pozemku. Takto zvolená kompozícia do budúcnosti navyše počíta s možným rozšírením zástavby o menšie objekty dočasného bývania, založené na rovnakých architektonicko-stavebných princípoch. Cieľom návrhu tak bolo vytvoriť priestorovo racionálnu, na zároveň nadčasovú a autenicky lokálnu architektúru, ktorá má ambíciu kultivovať svoje bezprostredné okolie.
What architects
0 komentářů
přidat komentář

Více staveb od What architects s.r.o.