Dům na okraji pláně

Dům na okraji pláně
Realizace:2025
Užitná plocha:85 m2
Zastavěná plocha:120 m2


Krajinná architektura: Studio TSK oblikovanje krajine / Tanja Simonič Korošak
Konstrukční řešení:
Inženiring Biro Armatura
Technické zažízení budovy: REing, Rational Energy, inženiring, d.o.o.,
Fotografie: © Ana Skobe
Skromný rodinný dům na okraji rovinaté krajiny v Murské Sobotě novým způsobem interpretuje myšlenku jednoduchého pavilonu zasazeného do zeleně jako moderního prostoru vhodného pro každodenní život. Projekt se spíše než na hledání vizuálního vjemu nebo formálního vyjádření zaměřuje na jasné a otevřené prostory v úzkém propojení s přilehlou krajinou.
Přestože dům splňuje všechny přísné urbanistické požadavky jako umístění na pozemku, půdorysné rozměry i pevně stanovenou výšku zástavby, tak se záměrně brání konvenčnímu příměstskému bydlení. Život v domě se odehrává okolo pobytu na zahradě, střídání světelných podmínek v průběhu ročních období, čímž navazuje na místní tradici nízkých obydlí, pro něž je charakteristické velkorysé prosklení, výrazné přesahy střech a plynulý přechod mezi interiérem a exteriérem. Tento přístup odráží modernistický odkaz Murské Soboty a zároveň jej překládá do současného prostorového jazyka.
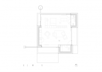
Dům je uspořádán okolo tří železobetonových jader (niky) fungujících současně jako nosná konstrukce, ale zároveň také jako technické zázemí, v nichž se nachází koupelna, kuchyně a technická infrastruktura. Tyto tři niky podpírají střešní betonovou desku, která umožňuje, aby mohl zbývající prostor v domě zůstat otevřený a flexibilní. Obytná část s jídelnou se otevírá jihozápadním směrem do zahrady a na terasu, zatímco ložnicová část s pracovnou směřují do intimnější severovýchodní zahrady. Obě tyto zóny odděluje i propojuje dlouhá oboustranně úložná skříňová stěna, která nijak výrazněji nenarušuje prostorovou kontinuitu.
Na severozápadním nároží vznikl zcela prosklený otvor, který rozpouští hranici mezi interiérem a exteriérem. Velké dřevěné posuvné panoramatické okno na jihozápadní fasádě toto spojení dále posiluje. Okno zajíždí do ocelového rámu a umožňuje, aby se obytný prostor v teplých měsících zcela propojil se zahradou.
Úpravy vnějších i vnitřních povrchů jsou z pohledového betonu. Ve směsi byl použitý štěrk z místní řeky Mura, což dodává povrchům dodává mírný kamenný vzhled. Beton si zachovává stopy recyklovaného bednění, nedokonalé textury, různé nerovnosti a časem nabývá patinu. Materiál nepůsobí jako neutrální kulisa, ale stává se aktivní součástí architektonického výrazu.
Zdrženlivý architektonický přístup pokračuje také v interiéru, kde se nachází leštěné betonové podlahy, vestavěný nábytek z dýhované dřevotřísky, recyklované židle a jednoduché osvětlovací prvky. Samostatně stojící litinová kamna v zimě posilují domácí atmosféru.
Dům se nechová jako architektonický objekt, ale jako prostorový rámec pro odehrávání každodenních rituálů reagujících na světelné změny a průběhu ročních období. Díky důrazu na nosnou konstrukci, materialitu a prožitky nabízí výsledný objekt tichou alternativu k současné pitoreskní rezidenční architektuře - takovou, která vyvažuje racionální konstrukci s citlivým a poetickým vztahem k danému místu.
Skupaj arhitekti
3 komentáře
přidat komentář
Předmět
Autor
Datum
Portál
Lukáš
26.01.26 11:13
Posuvné okno
Tomaž Ebenšpanger
31.01.26 10:18
Posuvné okno
Tomaž Ebenšpanger
31.01.26 10:52
zobrazit všechny komentáře