RD Záhorie

RD Záhorie
Rodinný dom je navrhovaný pôdorysne do tvaru členitého obdĺžnika ako jednopodlažný s ustúpeným podlažím. Prestrešený je plochou strechou s extenzívnou zeleňou.

Vstupný priestor je charakterizovaný ako zádverie s prislúchajúcim šatníkom. Priestor pri vstupných dverách je doplnený kúpeľňou s WC určenou pri užívaní dennej časti, respektíve pre návštevy. Dennú časť tvorí otvorená kuchyňa s jedálňou, ktorá s obývačkou vytvára veľkorysý otvorený priestor. Z jedálne a kuchyne je možný priamy vstup na terasu nachádzajúcej sa na západnej strane pozemku. Prvé nadzemné podlažie je doplnené hosťovskú izbu. Garáž ktorá je súčasťou rodinného domu je s dennou časťou prepojená filtrom/ technickou miestnosťou.

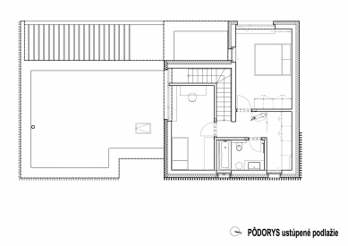
Nočná časť je sústredená na ustúpené podlažie na poschodí rodinného domu. Podlažie je tvorené dvoma
samostatnými spálňami s prislúchajúcim šatníkom a druhou spálňou.

Rodinný dom pracuje s kompaktnou, jasne čitateľnou hmotou, ktorej charakter určuje ustúpené horné podlažie. Vzniká tak výrazná proporcia medzi oboma úrovňami – parter má dvojnásobnú pôdorysnú stopu, čo sa premieta do veľkorysosti denných priestorov a prirodzenej hierarchie celku. Fasáda je riešená v drsnej, haptickej štruktúre, ktorá domu dodáva pevnosť a materiálovú úprimnosť už pri prvom kontakte.

Základnou myšlienkou návrhu je svetlo. Dom je orientovaný tak, aby ním prirodzene pretekal od rána do večera. Jeho pohyb vytvára v interiéri meniace sa atmosféry – ranné mäkké presvetlenie kuchyne, popoludňajší lesk v obývacej časti aj večerný západný tieň na stenách. Svetlo tu pracuje ako rovnocenný tvorivý prvok, ktorý spája všetky vrstvy domu.

Dispozícia je riešená s dôrazom na rytmus života majiteľov – účelná, čistá a bez zbytočných gest. Interiér stavia na prirodzených materiáloch, predovšetkým dreve a kameni. Nábytok je minimalistický, vyhotovený prevažne z bielenej kartáčovanej dubovej dyhy. Priestor oživujú rôzne štruktúry: priznaná tehlová stena prefarbená na bielo, miestami tehlový obklad a inde odhalený betónový strop. Každý povrch tu má vlastnú hmotnosť, rytmus aj vizuálny príbeh.

Na oboch podlažiach sa nachádzajú kúpeľne, každá v inej farebnej tonalite – terakotová s hrejivým, takmer južanským charakterom a mentolovo–zemitá zelená, ktorá pôsobí upokojujúco a sviežo. Obe však spája rovnaká práca s textúrou, svetlom a remeselným detailom.

Nočná zóna na poschodí je doplnená o spálňu s hlinenou omietkou obohatenou o drvené sušené byliny. Povrch v priestore vytvára jemnú, takmer meditatívnu atmosféru a reaguje na svetlo úplne iným spôsobom než ostatné materiály v dome.

Dom je orientovaný najmä na západ do trávnatej záhrady plnej rastlinstva a trvaliek, ktorá plynule prechádza do otvorenej krajiny. Z okna spálne vzniká dojem, akoby ste sedeli na poľovníckom posede – majitelia odtiaľ neraz pozorujú pasúcu sa divú zver. Na pozemku sa nachádza aj čiastočne zapustený drevom obložený bazén, ktorý si už po roku divoké rastlinstvo spontánne privlastnilo. Pôsobí, akoby bol súčasťou miesta odjakživa.
KubisArchitekti
0 komentářů
přidat komentář

Více staveb od KubisArchitekti