RD Záhorie

RD Záhorie
Address: Stupava, Slovakia
Completion:2024-25


Interior author: ToøL. interior architects / Lucia Vlasáková, Barbora Luptáková
Garden author: MILS / Martin Malachovský
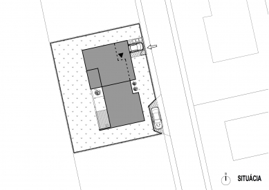
The family house is designed in a floor plan shape of an intricate rectangle as a single-story building with a recessed upper floor. It is covered with a flat roof featuring extensive greenery.

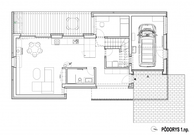
The entrance space is characterized as a vestibule with an accompanying wardrobe. The area by the entrance doors is complemented by a bathroom with a WC intended for use during the daytime section or for visitors. The daytime area consists of an open kitchen with a dining room that, along with the living room, creates a generous open space. From the dining room and kitchen, there is direct access to the terrace located on the western side of the plot. The first above-ground floor is complemented by a guest room. The garage, which is part of the family house, is connected to the daytime area by a filter/technical room.

The nighttime area is concentrated on the recessed upper floor of the family house. This floor consists of two separate bedrooms with accompanying wardrobes and a second bedroom.

The family house works with a compact, clearly readable mass, the character of which is defined by the recessed upper floor. This creates a significant proportion between the two levels—the ground floor has double the floor footprint, which is reflected in the generosity of the daytime spaces and the natural hierarchy of the whole. The facade is treated in a rough, haptic texture, which gives the house strength and material honesty upon first contact.

The fundamental idea of the design is light. The house is oriented so that it naturally flows through from morning to evening. Its movement creates changing atmospheres in the interior—morning soft lighting in the kitchen, afternoon shine in the living area, and evening western shadows on the walls. Here, light works as an equal creative element that connects all layers of the house.

The layout is designed with an emphasis on the rhythm of the owners' lives—functional, clean, and without unnecessary gestures. The interior is built on natural materials, primarily wood and stone. The furniture is minimalist, made predominantly from bleached brushed oak veneer. The space is enlivened by various textures: an exposed brick wall painted white, brick cladding in some places, and elsewhere an exposed concrete ceiling. Every surface here has its own weight, rhythm, and visual story.

Both floors contain bathrooms, each in a different color tone—terracotta with a warm, almost southern character and mint-earthy green, which feels calming and fresh. However, both share the same handling of texture, light, and artisanal detail.

The nighttime zone on the upper floor is complemented by a bedroom with clay plaster enriched with crushed dried herbs. The surface in the space creates a subtle, almost meditative atmosphere and reacts to light in a completely different way than other materials in the house.

The house is oriented primarily to the west towards a grassy garden full of plants and perennials, which smoothly transitions into open countryside. From the bedroom window, there is an impression of sitting in a hunting hide—the owners often observe grazing wild game from there. The plot also features a partially sunk wooden-clad pool, which has been spontaneously claimed by wild vegetation after just a year. It appears as if it has been part of the place forever.
KubisArchitekti
The English translation is powered by AI tool. Switch to Czech to view the original text source.
0 comments
add comment

more buildings from KubisArchitekti