Rekonstrukce domu na ulici Hroznová v Brně

Rekonstrukce domu na ulici Hroznová v Brně
Spoluautorka interiéru:Markéta Hrůšová
Adresa: Hroznová 6, Pisárky, Brno, Česká republika
Projekt:2019-2022
Realizace:2024


Spolupráce:
Ing. arch. Jaromír Stříbrný (projekt pro stavební povolení a provedení stavby)
Ing. arch. Lucie Jestřábová, Ing. arch. Lukáš Hodek (architektonická studie)

Návrh zahrady: Ing. Jakub Finger | Partero
Stavební firma: BH Stav | Ing. Tomáš Hradečný (stavbyvedoucí)
Rodinný dům na ulici Hroznová v Brně v prestižní čtvrti Pisárky stojí na dohled městské luxusní vily Stiassny a vily Wittal. Jedná se o lokalitu vilové zástavby z přelomu 19. a 20. století. Pozemek má obdélníkový tvar, jeho delší strany jsou situovány na severovýchod a jihozápad a mírně se svažuje směrem k jihovýchodnímu rohu k zahradám okolních domů.

Původní dům vznikl jako soudobá kostka ze 70. let dodatečně postavená na část zahrady sousední výstavní secesní vily dnes přestavěné v duchu 90. let.

Konstrukce původního domu byla z plynosilikátových panelů, s dřevěnými lehkými stropy, jednoduchým schodnicovým schodištěm, jen suterén byl vyzděný z cihel. Charakter třípodlažního domu s břízolitovou fasádou, vjezdem do polozapuštěného suterénu pomocí prudké rampy, plochá střecha nekoresponduje s žádnou sousední architekturou a je jakoby manifestem nové doby sociální rovnosti. Původní objekt má půdorys obdélníku s výřezy, které doplňovaly přesný tvar balkony a vytvářely výřezy na východní a západní straně.

Nový návrh stávající hmotu domu začišťuje, zjednodušuje a doplněním navyšuje, aby dům více odpovídal svým měřítkem okolním objektům. Nadstavené ustoupené třetí nadzemní podlaží s prostornými terasami poskytuje výhledy na brněnské výstaviště a okolní zástavbu.

Nová přesně hlazená vápenná omítka posiluje působivost kvádru, vychází z památkově chráněných fasád honosných secesních sousedních vil. Centrální kompozice, jemné detaily a ušlechtilé materiály navazují na výraz okolních domů a soudobým výrazem tyto prvky spojuje a dotváří kompozici zahradního města se zástavbou vil.

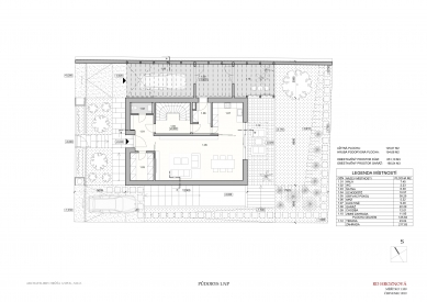
Koncepce domu respektuje původní obvod a příčný systém usazení stropů. Nově je navržené částečně točité schodiště s prostorným zrcadlem a navazující podestou, která vytváří chodbu. Ta v každém patře rozděluje dům na část komunikační a část obytnou – v přízemí je velký obytný prostor s vestavěným kuchyňským koutem, v patře jsou ložnice a šatna a v ustoupeném podlaží dva dětské pokoje. V částečně zapuštěném suterénu jsou dvě pracovny, technické místnosti a tělocvična. Součástí každého patra jsou komfortní hygienické místnosti a toalety. Dům byl původně samostatně stojící v návrhu s pergolou k sousední opěrné zdi. Po dohodě se sousedy mohla prostor k sousední opěrné zdi vyplnit dvojgaráž se zimní zahradou se zelenou střechou. Souměrná centrální kompozice fasády je z ulice podpořena zapuštěnou nikou hlavního vstupu, ze zahrady jsou ve všech patrech navržena velká trojdílná posuvná okna. Uliční hmota přistavěné garáže je v pohledu vyvážena rohovým oknem. Malá obytná zahrada navazuje na prostornou terasu krytou velkým ložnicovým balkonem a je vyrovnaná pomocí opěrných zdí. Realizace a návrh osazení zahrady je od firmy Partero.
0 komentářů
přidat komentář

Více staveb od Architekti Hrůša & spol., Ateliér Brno