Painter’s Apartment Renovation

Painter’s Apartment Renovation
Spolupráce:Kristýna Sedláková
Address: Tusarova, Holešovice, Prague, Czech Republic
Investor:Lucie Michnová
Project:2024
Completion:2025
Area:35 m2


The studio Plus One Architects realized the renovation of an apartment in Prague's Holešovice district for painter Lucie Michnová. The future rental apartment of 35 square meters is located on the first floor of a historic building from the late 1920s. The complete transformation aimed to create a fully functional and visually appealing urban living space within a limited budget. The emphasis was therefore on durability and affordability of materials that meet both aesthetic and user value.
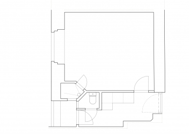
The orientation of the one-bedroom apartment to the south offered the opportunity for significant brightening. The original floor plan consisted of a narrow, dark hallway with a kitchen and a toilet of 6 m², separated by a wall from the main living area, which included a bedroom and bathroom. The client was open to unconventional solutions, which made it possible to work with a completely new room layout. All the partitions were removed, enabling daylight to flow freely into every corner of the apartment.
The entrance hallway, framed by closets, now leads to the balcony doors with a street view. On the left, a shoe cabinet transitions into a dining bar, while on the right, the edge of the kitchen counter subtly draws visitors into the main living area. This space is dominated by a large-scale painting by the owner. The kitchen adjoins a semi-open bathroom, the only solid-walled section of the apartment, newly built on a raised platform. The shower enclosure is topped with frosted glass, serving as a light panel. The other half of the bathroom houses a sink, with the toilet positioned behind it, featuring the apartment’s only interior door. A bed placed alongside the window offers a view of the treetops outside, minimizing any potential discomfort associated with living on the first floor.
The interior, designed with only two colors, appears clean and almost modest at first glance. The floor is covered with a light-toned poured polyurethane layer. The walls are painted in standard white, matching the original doors and windows. The cabinetry is made of either white or birch plywood. The shoe cabinet doors are complemented by a mirrored foil, which moves natural light further into the apartment while visually enlarging it.
Upon closer exploration, details emerge that bring the space to life. A rough-textured relief runs along the outer perimeter of the bathroom and the dining bar, adding depth and character. Color accents appear above the kitchen counter and in the bathroom, where they are used on both the floor and walls. The tiles, with their irregular combination of yellow shades and partial coverage that stops short of the corners, create a playful sense of dynamism.
The renovation opened up the previously dysfunctional layout and significantly brightened the apartment, even in its most remote corners. The space is seamlessly connected, enhancing its sense of openness and compactness. The limited budget was formative for the project, yet it did not compromise the final quality. Thoughtfully designed details highlight the interior’s versatility, demonstrating that functionality and aesthetics can go hand in hand.
Plus One Architects
1 comment
add comment
Subject
Author
Date
Proměna
30.04.25 12:59
show all comments

more buildings from Plus One Architects