Villa G2

Villa G2
Spolupráce:Jaroslav Hlinka, Petr Ramík, Helena Suchánková
Project:2020
Completion:2024-25
Built Up Area:300 m2
Site Area:900 m2
Built Up Space:2251 m3


Awards: Finalist Grand prix of architects 2025
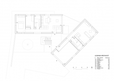
The land is situated on the southern outskirts of the city, in close proximity to a pine grove on the southern side and tall majestic linden trees on its northern border. The complex topography and floor plan geometry and relatively small area of ​​the land (900m²) were decisive for the resulting development concept, where the assignment was, among other things, maximum construction economy.
The result is a concept of two mutually shifted 2-storey lapidary prisms, located along the southern and northern borders of the plot, connected by a shared exterior staircase, entrance and terrace on the ground floor, create an entrance courtyard from the street.
The northern prism has a basement and offers a garage and storage space in the basement, while the connecting 1st and 2nd floors each contain 1 apartment unit of 3 + KK. The southern prism then offers a double garage and service areas on the ground floor, and on the 2nd floor again a 3 + KK apartment with beautiful views of the western landscape.
Each of the living spaces of all apartments offers views of the majestic greenery growing around it, both linden trees on the northern and pine trees on the southern border of the plot.
Concrete, glass and lamella facade inspired by the wooden fences in the area, in colors corresponding to the surrounding nature in the exterior, concrete, glass and wood in the interior of the individual apartments create a characteristic dualism of the internal and external nature of the house, reflecting the clash of the natural and built environment.
TREF-Architekti
1 comment
add comment
Subject
Author
Date
show all comments

more buildings from TREF-Architekti