Dům s jezírkem

Dům s jezírkem
Adresa: Pod Ptáčnicí, Černošice, Česká republika
Projekt:2020
Realizace:2025
Užitná plocha:228 m2
Zastavěná plocha:150 m2
Plocha pozemku:1572 m2


Hlavní inženýr projektu: Aleš Herold
Krajinářská architektura: Terra Florida | Lucie Vogelová
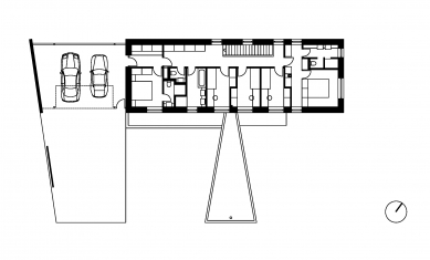
Svažitý pozemek s přístupem ze západu a s výhledem do údolí Berounky nás přivedl k netradičnímu uspořádání domu. Terén zde totiž neumožňoval klasickou dispozici s obytným přízemím a klidovou částí v patře. Zvolili jsme proto obrácený princip: hlavní vstup jsme umístili do horní úrovně, která slouží jako ložnicové patro. Tento přístup nám umožnil, aby se dům přirozeně napojoval na příjezdovou komunikaci a zároveň plynule sledoval terén.
Z ložnicového patra se po schodišti sestupuje do společenské části domu, kde jsme situovali kuchyňský kout s jídelnou a obývací pokoj. Toto vertikální členění odkazuje na koncept známý například z vily Tugendhat v Brně, kde se obytné prostory otevírají směrem k nejkvalitnějším výhledům a propadají se terénem. Podobná logika nám zde umožnila vytvořit plynulé prostorové gradace – od kompaktního horního podlaží až po plně otevřený obytný prostor s výhledem do údolí.
Svažitost terénu se promítá i do samotného interiéru. Obytný pokoj jsme umístili o tři schody níže než jídelnu, což mu dodává nadstandardní světlou výšku. Rozdíl nivelet vytváří dynamický prostor, který reaguje na terén a přirozeně z něj „vyrůstá“. Z obou úrovní obytného patra je možné přímo vstoupit na zahradu. Vyšší část jsme propojili se zastřešenou terasou krytou, nižší úroveň sousedí s přírodním jezírkem a zahradou.
Volba materiálů sjednocuje vzhled fasády a interiéru a zajišťuje jejich vzájemnou návaznost. Fasáda z pískových cihel dodává stavbě pevný, klidný výraz. Stejné světlé tóny jsme uplatnili i uvnitř domu – zejména na běleném dubu použitým pro podlahy, schodišťové stupně i vestavěný nábytek. Dominantním prvkem obytného prostoru je třístranný krb, který přirozeně definuje hranici mezi jídelní a obývací částí, umožňuje vnímat oheň z různých míst a prostor zónuje bez nutnosti fyzických bariér. Plní tak jak estetickou, tak funkční roli a stává se přirozeným středobodem společenského života domu.
Celkově jsme dům koncipovali jako stavbu, která se nesnaží terén překonávat, ale naopak s ním spolupracuje. Všechny klíčové provozní i tvarové principy domu vycházejí z reakce na lokalitu. Výsledkem je dům, který je pevně zakotvený ve svém prostředí, krajinu nejen rámuje, ale svou dispozicí ji aktivně využívá.
Stempel & Tesař architekti
0 komentářů
přidat komentář

Více staveb od Stempel & Tesař architekti