Ještěd in the Cage 11 - nomination

Source
x-fatul
Publisher
Tisková zpráva
05.02.2014 21:25
Elisabeth Pomahačová (1st year) - Studánka
atelier Mg.A. Petra Šmídka and Ing.arch. Jiří Žid


Studánka. tombstone. touch of human hand. contact. memory
It is interesting how much the state of tombstones depends on their horizontality or verticality. If it lies freely in the grass, it is visible whether someone cares for it. If not, it should eventually find its elegant way to merge peacefully with nature. I found shape inspiration in a certain similarity of a ritual that I observed in cleaning a forest spring. The whole concept is based on subtlety, material and shape simplicity, and purity.



Martin Holba
(2nd year) - Back to the forest, facing the hall
atelier Ing.arch. Radka Suchánka, PhD., Ing.arch.Dott. Petra Janoše and Ing.arch. Vladimír Baldy


Špania Dolina is surrounded by mountains, mines, shafts, white plasters, streams, ponds, bears, architecture students, and something is missing in the middle. The growth of the village has been determined by nature for centuries, both by the hills and its mineral wealth. Today it is empty in the middle of the former ore processing center.
I intersperse this flat terrain with a regular grid that helps me grasp the whole place. The grid connects with the axis of the valley and surrounding roads. One side completes the square. Here I placed a house that opens inward. Half of the building serves year-round as a café. The other half is occasionally used as a hall, theater, gallery, or gym. The building can be closed for various occasions with large metal gates or connected with the café. However, for most of the time, it is passable, linking the square with the adjacent space - the municipal courtyard. At the end of this space lies an elongated mass of a kindergarten, which is internally divided into squares of the grid. A large part of the municipal courtyard serves as its garden. In the middle of the courtyard stands a gazebo with a viewing platform and a fire pit. It is accessible to everyone and can be seen from afar. The fire attracts pilgrims. The stream and then the stairs lead them to the table. The last object is the fire station. Its location by the road directs vehicles towards the square and closes the entire space. Visual axes and the scale of the grid are designed so that the entire area connects with the village. With the influx of new energy, Špania Dolina will absorb the grid and blend into it.



Tereza Čermáková (4th year) - Humienka
atelier Ing.arch. Radka Suchánka, PhD., Ing.arch.Dott. Petra Janoše and Ing.arch. Vladimír Baldy


The village of Špania Dolina is a former mining community located in central Slovakia near Banská Bystrica. The mining activity is mainly recalled by the monumental heap of waste immediately adjacent to the center of the village, as well as buildings that do not correspond in scale to the current significance of the village.
In recent years, the village has experienced a gradual influx of new inhabitants. They appreciate the city's accessibility combined with the mountain character of Špania Dolina. Young families with children are moving into the village. They escape the bustle of the city and here they find the sought-after authenticity. However, they lack basic services necessary for social life and child education. Although the number of residents increases several times over the weekends due to weekenders, this potential is not utilized. The village lacks a natural integration center. Places that would meet the needs of locals and visitors alike.
The imaginary square today forms a park built in place of structures associated with mining activities, which ceased at the end of the 19th century. The village never had a square or a true marketplace, and the open spaces, understood today as the center of the village, served purely practical purposes (see the location of the Municipal Office outside today's center).
In my proposal, I abolish today's square/park and propose a development that loosely follows the original footprint of the standing structures. The proposed houses and landscape interventions follow and complete important lines of buildings while defining new spaces - a square, streets, and public spaces.
The line in the landscape, which follows the direction of the valley penetrating the character of the entire village, defines the access path for pedestrian tourists coming from the parking lot below the village. A cut on the other side delimits the area where the Municipal Office is located. According to period sources, this part of the village had undeniable importance, which was emphasized by a now non-existent row of trees.
The proposed buildings are not meant to solve all the village's problems, but to be an initiator of changes that can only come from the residents themselves. The proposal offers them a way to spend time in the company of fellow inhabitants (in the library over newspapers, during social events in the hall,...) and visitors to the village who will find the needed services here. For families with children, it offers an alternative to commuting in the form of a children's group service, which has minimal demands for establishment but greatly eases the life of working parents. The communal area forms an urbanistically compact block that, however, allows free passages and views with its structure. From the frontal façade facing the square, through the porch area to the backyard, in Slovak humienka.
The operation of the houses varies depending on the time of day. During the day, they come to life due to the children from the mini-school and local residents who come to read the daily press in the library. The barn-like character of the houses is disrupted by dividing the ground floor into individual functional units. The articulation of the floor plans and the alternation of outdoor and indoor spaces in both houses are made possible by a pair of continuous load-bearing walls. The floor plan is not continuous, and from a human perspective, the houses are meant to feel like a composition of full and empty surfaces, visually connecting to important points in Špania Dolina.



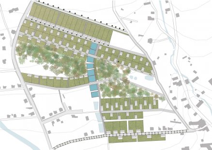
Lucie Pavlištíková (4th year) - Living in the fields of Horní Jiřetín
atelier Ing.arch. Radka Suchánka, PhD., Ing.arch.Dott. Petra Janoše and Ing.arch. Vladimír Baldy


Horní Jiřetín, a municipality which is a city by its status, acts like a suburb and has the face of a village. With the potential for growth and hidden poetry of reservoirs full of trout and other fish, it waits for its opportunity. It used to be a communal village and home to miners. What is it to be today? I addressed the greatest potential of Jiřetín, living. I sought to connect to the memory of the fields, expand the theme of water reservoirs, and preserve the charm of the young forest near the center. From this place emerged the concept of building blocks in the fields, a cascading water axis, and green axes. I chose a block as the future urban structure, but with a more rural character featuring family houses for today. The diversity of blocks is designed to ensure different faces of streets, making it easier for people to orient themselves. Transportation is structured very simply; the circuit of a two-lane road is intersected by one-way streets, and it is possible to walk across the entire area.



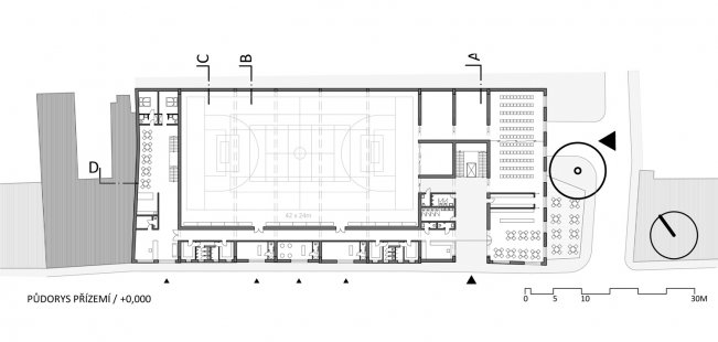
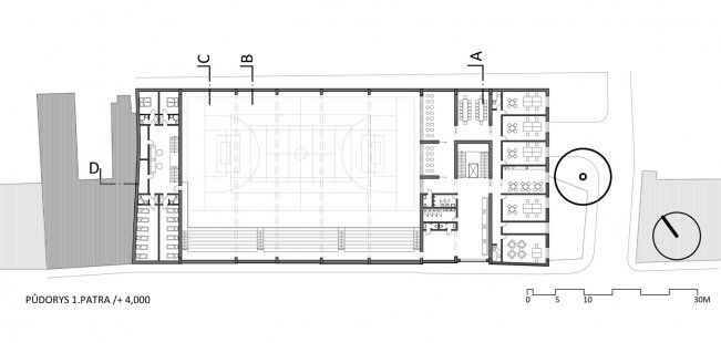
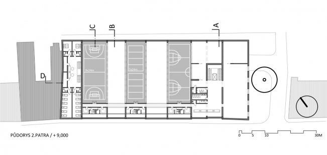
Jiří Gulbis (1st year mag) - Sports hall Roudnice nad Labem
atelier Ing.arch. Radka Suchánka, PhD., Ing.arch.Dott. Petra Janoše and Ing.arch. Vladimír Baldy


situation / gap in the historical center in close proximity to the baroque-modified Gothic church of the Nativity of the Virgin Mary / gap wedged between the embankment of the railway line, remnants of classical small-town structures, and the monastery complex
concept / I propose a building to strengthen the city / a lively ground floor to the street with shops and a café as a soft transition between a street used by all users of the city and a primarily mono-functional building visited mostly by a closed interest group
architecture / emotional transcription of the vanished street front into a new urban structure in the interest of revitalizing the scale of the decaying urban ring / amalgamation of small houses hiding a large-span sports hall / ephemeral imprint of historical facades
operation / sports hall suitable for hosting international matches / facilities for athletes / three outdoor courts / administrative support for a basketball academy / rentable conference spaces / hotel for athletes / shops / café / covered parking in the basement
materials and construction / steel truss structure / insulating shell made of sandwich panels / facade and roof of patinating steel



Jakub Dvořák
(3rd year) - Gap project
atelier Ing.arch. akad.arch. Jana Hendrycha and Ing.arch. Ing. Jiří Janďourek


Before this project, I had never heard of Krymská street. I perceived the street like any other. When I started gathering information, I learned that neighborhood relationships function perfectly in this street. There is a kind of community of neighbors in Krymská. The street serves as a meeting place and for organizing events, and the gap, as they call the missing block of houses, is its culmination. It is said that opportunity makes a thief; when I translate this to the situation in Krymská, the openness of the place may be one of the main reasons for the creation of this community of people. This place has a special charm; the atmosphere of the open block evokes a sense of freedom in me. I realize that this must remain. In thinking about the project, I aimed to preserve that intangible energy that is here and transform it into matter. From the beginning, I knew that the matter could not be solid, as it would close off the space and the sense of freedom would vanish. At the same time, everyone senses that something is missing here, and there is a need to supplement that something. My intention was to create an object that visually complements the street while keeping the meadow open. With my intervention, I shape what I feel here. On the open space, I will place a subtle structure that will multiply the area and offer additional possibilities for using the space. The materials placed in this structure will reduce the scale, arranged so that one feels comfortable here and the meadow remains. The volumes are created by stretching a fabric that is sufficiently flexible. There are carriers of greenery that create hanging gardens. This object should behave like an organism, reflecting its immediate surroundings, and it should embody the needs of the people using the object.



Adam Kössler (1st year mag) - From the quarry
atelier Ing.arch. Radka Suchánka, PhD., Ing.arch.Dott. Petra Janoše and Ing.arch. Vladimír Baldy


It wasn't long ago that a regatta was held at the Dřínov water reservoir; people from the surrounding area came here to relax and flocks of birds lived in the surrounding wetlands and marshes. In 1981, not only this lake but also the railway track, the municipality of Dřínov, and several other municipalities had to give way to coal mining. It is hard to find a place that has undergone a more fatal transformation and has such a troubled history. This is an area that thirty years ago was engulfed by the brown coal mine ČSA sprawling under Horní Jiřetín. The dwindling coal reserves in the mentioned mine have recently brought this area into the spotlight of politicians and the media. This widely discussed topic caught my attention and prompted me to ask how to deal with the mine after the cessation of mining. While conducting my subsequent research, I came across the project for the technical reclamation of the affected landscape. I had the opportunity to see that these "masking" concepts do not work very well on the already reclaimed areas around the mine. Frequently vaguely defined land-use plans can become breeding grounds for inappropriate development projects. I believe that for an area with such significant development potential, carefulness is required.
In addressing my project, I chose a different approach. In order to preserve the authenticity and energy that this landscape possesses, I leave it to natural succession. I view it as a clearly defined entity with a raw character, as an industrial trace. I count on the naturally gradual flooding of the entire mine, thus creating a vast body of water.
I situate my project on the border of the future lake and the municipalities of Černice and Horní Jiřetín. I propose a nature reserve, while trying to accentuate the subtle elements of the landscape that have gradually disappeared. I mean especially to restore natural structures such as wetlands, reed beds, and especially natural nesting sites for waterfowl that were typical for this area. These structures are enclosed and supported by an orthogonal grid of wooden walkways. The grid is defined by three main axes that connect existing and vanished municipalities. It is designed as a "growing" structure, thus it can expand, adapting to nature and new needs.
Along the main axis, I place three towers with different uses, which define the scale of potential later interventions. The objects have a direct relationship with the development of the given locality. The first tower with an adjacent boat dock is designed for a paddling club, the second tower serves scientific purposes as a station for biologists, and the third tower can be used by tourists as an observation tower and a shelter.
With this vision, I did not want to create replicas of the vanished; rather, it was meant to be a reminiscence of the original character and nature of the landscape.
The English translation is powered by AI tool. Switch to Czech to view the original text source.
0 comments
add comment

Related articles